MENCIÓN 2013
TERMINAL DE PASAJEROS "AEROPUERTO REGIÓN DE MURCIA" . Murcia
descripcion fotos
01 portada 02 03 04 05 06 07 08 09 10 11 12
Arquitecto:Sanabria Boix, Ramón - Ferrater Llambarri, Carlos - Sayeras Quera, Dolors - Casadevall Márquez, Josep Maria / Promotor:Comunidad Autónoma Región de Murcia / Constructor:Dragados Construcción S.A. / Arquitecto técnico:Ruiz Pérez, Juan Carlos / Colaborador:Colominas Golobardes, Manel
TERMINAL DE PASAJEROS `AEROPUERTO INTERNACIONAL REGIÓN DE MURCIA¿




TEXTO                        


La terminal de pasajeros del Aeropuerto Internacional Región de Murcia deberá incorporar futuras ampliaciones sin modificar su actividad diaria.

Se ha concebido un ¿procesador¿ fácilmente ampliable que permite incrementar los mostradores de facturación y los hipódromos de recogida de equipajes, pero manteniendo la estructura básica en continuo funcionamiento. Para ello, se disponen unos jardines laterales de vegetación autóctona que se ocuparán en los sucesivos escenarios de crecimiento.

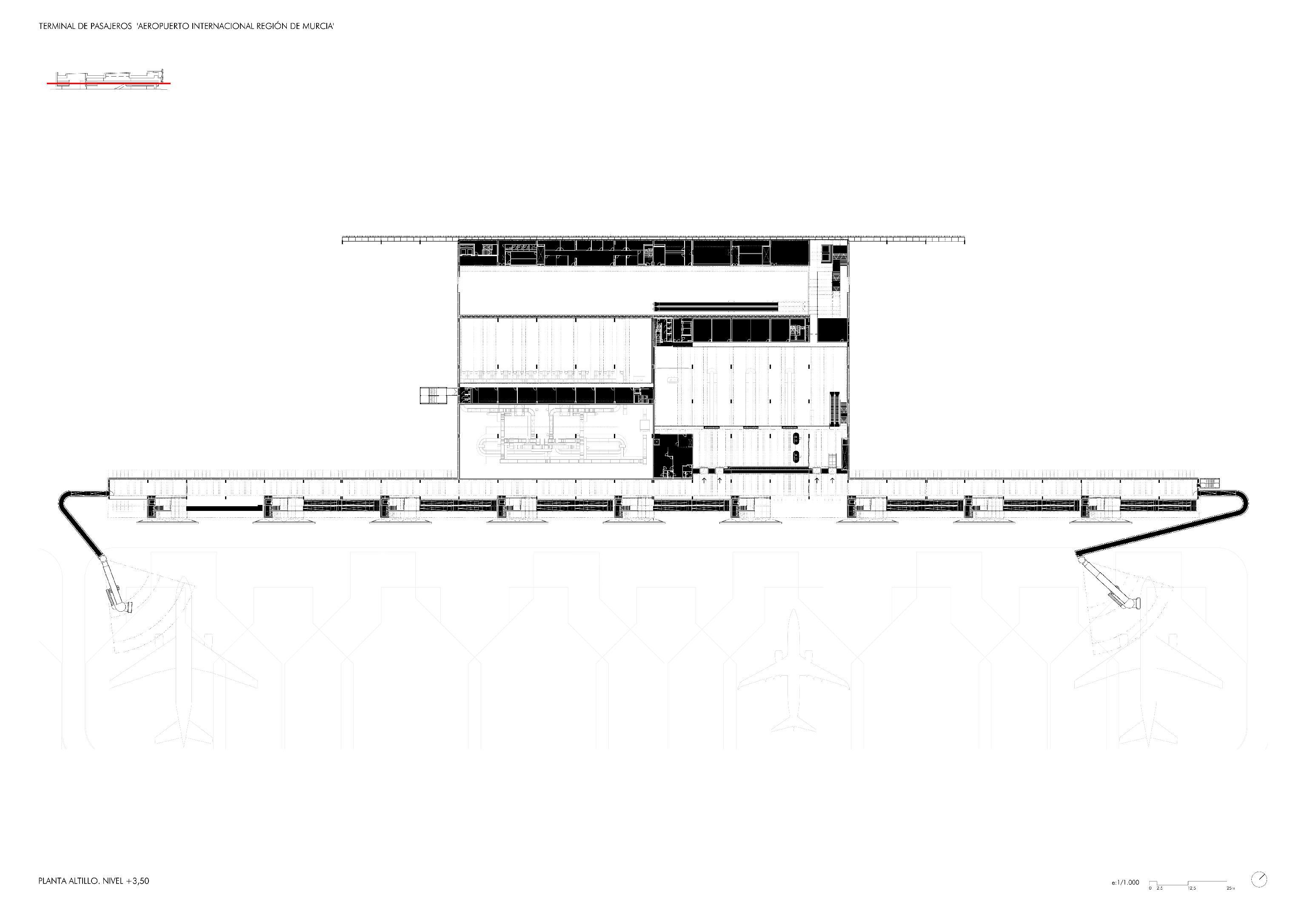
En su escenario de obertura, el aeropuerto, dotado con una terminal  con nueve puertas de embarque, tiene una capacidad aprobada para 3 millones de pasajeros/año, si bien la propia terminal la tiene, para 5,2 millones.

La terminal se ha diseñado a partir de la lógica de los flujos de pasajeros y de las necesidades de servicio aeroportuario, siempre dentro de espacios ¿contenedores¿ basados en la neutralidad y la abstracción compositiva. Se plantean itinerarios que transcurren entre la luminosidad del exterior y el tratamiento matizado de la luz interior mediante entradas de luz cenital. La sucesión de diferentes espacios identificables nos permite una fácil y rápida legibilidad de los recorridos a realizar.

En planta, la terminal queda definida por el procesador, de 125m. de longitud y 75m. de profundidad, y el dique de embarque, de 350m. de longitud i 15m. de anchura.

El concepto arquitectónico propuesto impone claridad y simplicidad a los procedimientos operativos.

El edificio, alejado de la arquitectura prototípica aeronáutica, se basa en la superposición de espacios ortogonales en secuencia continua, con una captación controlada y mediterránea de la luz natural, y un tratamiento genuinamente blanco de las superficies interiores.

En el exterior, también en la cubierta, se ha utilizado un material ligero como el aluminio, capaz del mejor camuflaje con el cromatismo del cielo. El otro material base, el vidrio, nos da transparencia.

Su  identificación con una imagen propia nos ha llevado a incorporar el nombre de la Región de MURCIA en las dos fachadas principales.

La idea abstracta de diseño fue una afirmación: la neutralidad era la mejor opción, capaz de transmitir y comunicar los valores de la nueva infraestructura en el paisaje.

En una concesión a amortizar, el arquitecto, un consultor más, debe moverse en un mundo de ingenieros aeronáuticos y de caminos. La economía de recursos es la variable más importante.

La convergencia de los intereses contrapuestos de las distintas partes implicadas en intereses comunes se basó en desnudar de todo lo superfluo y prescindible el proyecto inicialmente previsto.