PREMIO 2013
CASA PARA TRES HERMANAS . Bullas
descripcion fotos
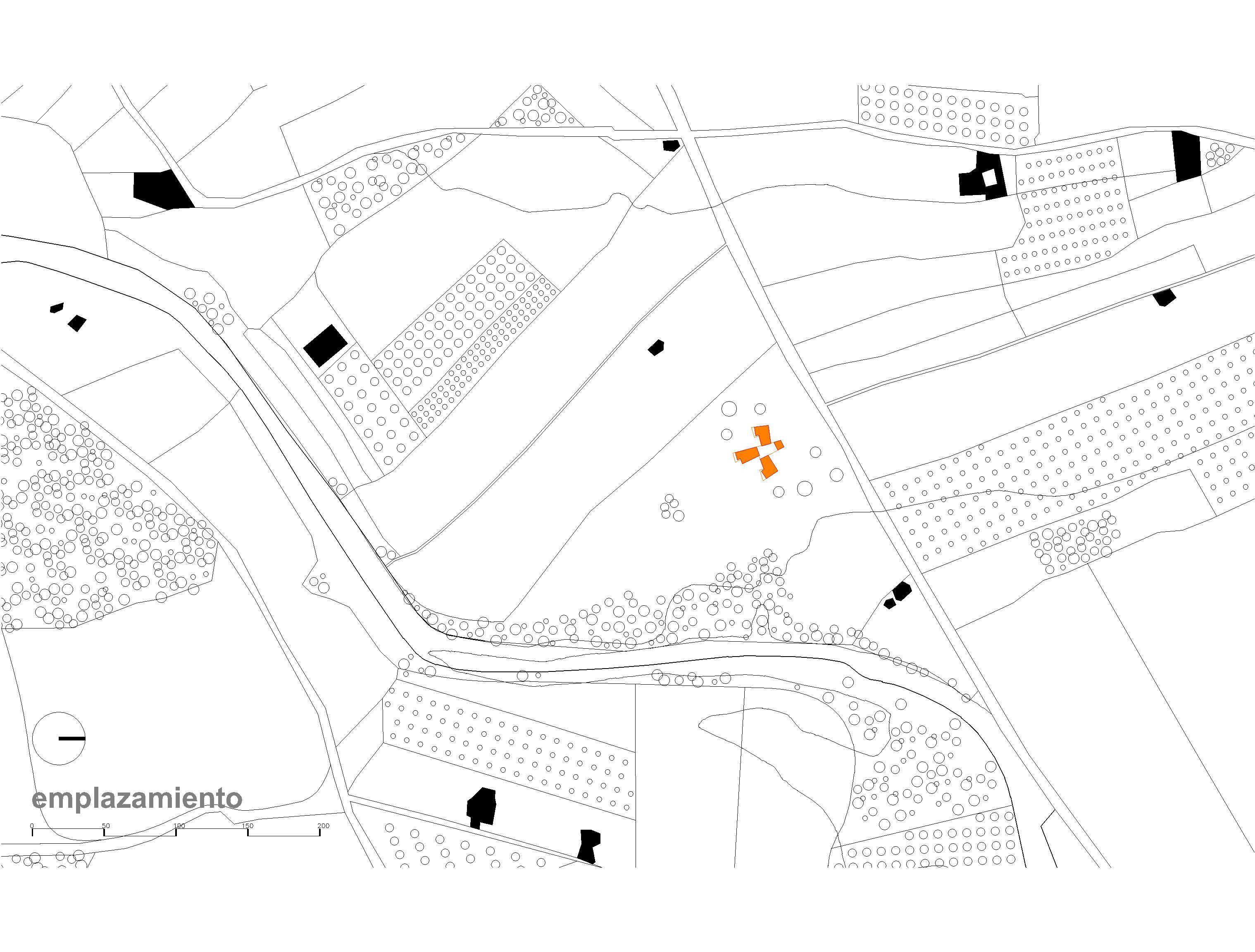
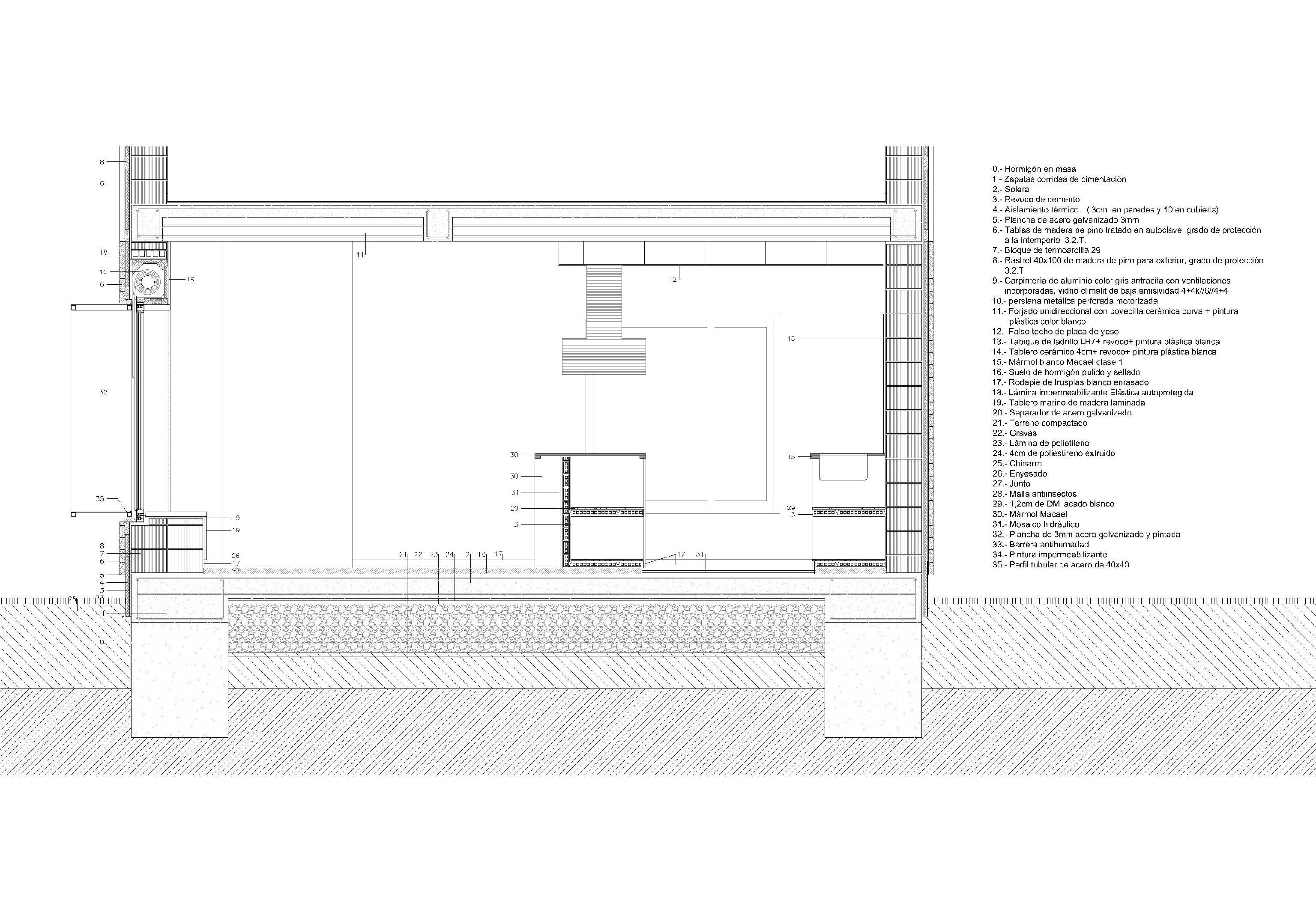
F. Sur Oeste Emplazamiento Plantas Secciones y Fachadas Sección constructiva F. Norte F. Sur F. Sur casa M Patio Cubiertas Escalera Sala
Arquitecto:Patricia Reus Martínez - Jaume Blancafort Sansó - blancafort-reus arquitectura / Promotor:Mari Ángeles Carreño Hernandez-Gil - Minuca Carreño Hernandez-Gil - Irene Carreño Hernandez-Gil / Constructor:Construcciones Antonio Martínez / Arquitecto técnico:Octavio Artés Carpena / Colaborador:David Frutos (Fotógrafo) - Candy García Vicente - Ginés Sabater

BREVE MEMORIA


"el meo sonho"


Hace mucho tiempo, en un bello pueblo portugués, vimos una casa en cuyo umbral se leía, "mi sueño".


¿Habrá algo más inspirador que el reto de hacer realidad un sueño?


Este proyecto busca cumplir con el anhelo compartido por tres hermanas. Un hogar integrado en el paisaje y la tradición de la zona, respetuoso con el medio ambiente y lleno de rincones donde gozar.


Este refugio se genera a partir de tres unidades independientes; tres hermanas y sus familias, tres casas con buenas vistas y buena orientación pero también con cierta intimidad entre ellas. Tres viviendas juntas pero no revueltas, un campo, un patio común, un lugar donde caben todos los primos, un lugar donde caben todos los amigos.


Como objeto arquitectónico la vivienda trata de fundirse con el paisaje circundante, un valle de vides y olivos, haciendo patente con su geometría confusa y una materialidad expectante, una actitud más pendiente de los condicionantes contextuales que de sí misma. Una arquitectura desacomplejada que permanece a la espera de transformarse con el paso del tiempo, según el sol vaya volviendo grises sus fachadas y vayan apareciendo signos de unas vidas jubilosas.


La construcción es sencilla, con materiales y técnicas de la zona y con un revestimiento englobador característico de pino tratado (PEFC). Se emplean múltiples estrategias que adaptan la vivienda al entorno climático en el que se sitúa, proporcionando confort y eficacia energética


En este conjunto rural se ha intentado recoger el saber ancestral y contemporanizar las soluciones constructivas tradicionales, administrando altas dosis de coherencia ética y estética para ofrecer a Irene, Minuca y Mª Ángeles un lugar en el que disfrutar de la VIDA.