PREMIO 2013
VIVIR SIN LÍMITES . Los Alcázares
descripcion fotos
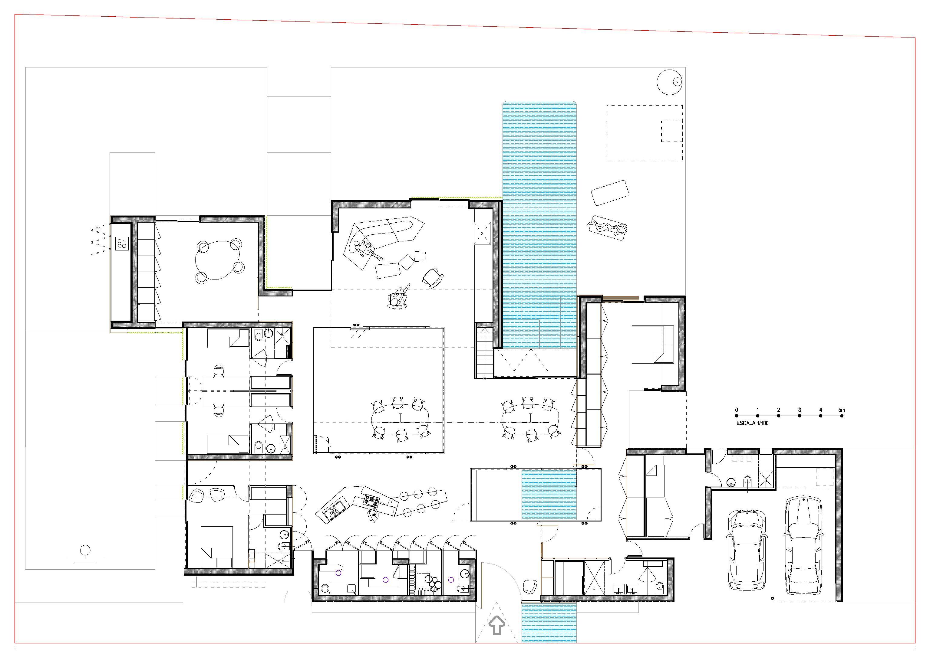
Planta general Alzados a Torre de Rame Piscina Pérgola exterior Fachadas vegetales Cocina Comedor en patio central Comedor en espacio interior Salón Dormitorio principal Dormitorio de niños Escalera del torreón
Arquitecto:Juan Antonio Sánchez Morales - Riccardo Crespi - Miguel Mesa del Castillo Clavel - Laura Ortín Jiménez
Frente a las llanuras, y el Campo de Cartagena es una de ellas, podemos imaginar dos actitudes básicas: replicarlas, proponiendo su contrario, la torre, que vigila y controla (que sería el caso de aquellas construcciones tradicionales en las que se reconoce con claridad la ambición hegemónica), o acompañarlas, la casa extendida, que en su configuración espacial básica se desperdiga por el lugar pegada al suelo, como los reptiles (que sería el caso de aquellas construcciones tradicionales que constituyen la base de la actividad agropecuaria).

Nuestro trabajo pretende ofrecer una versión actualizada de ese segundo modelo. Así, esta vivienda es un damero programático que se extiende ocupando el plano de tierra con diversos espacios articulados. Interesan todos los programas, buscando su alternancia entre el exterior y el interior, con la mente puesta en la creación de microclimas, de corrientes, de ventilaciones cruzadas, de entrar y salir sin darse mucha cuenta, recuperando sensaciones antiguas de cuando estabas cerca del Mar Menor.

Esta casa quiere también ser eficaz, precisa, como soporte de la vida en común de una familia conocida, aprovechando todo lo que ya hemos aprendido juntos en otras historias. Una casa negociada tranquilamente, ajustando sin prisas sus cualidades para saber con cierta garantía de qué estamos hablando, para que la experiencia de su construcción sea tan amable como tomar unas cervezas, entre pasteles de carne y mucho guacamole. Una gestación lenta y convenida que nos deje el entusiasmo para seguir planificando nuevas aventuras. Por eso su arquitectura ni busca golpes de efecto, ni artificios, ni alardes, solo la secuencia ordenada y fluida de espacios contiguos suficientemente cualificados. Una pequeña experiencia, en resumen, de hacer cosas en equipo, olvidándonos de egos y personalismos.

Pero también queremos un poco de lujo, que no vamos de espíritu monacal ni de minimalismos tardíos, un lujo que se traduce en algunos materiales, en cuidadas carpinterías, en losas de hormigón, algo de color, mobiliario cuidado en lo posible,¿ una receta, en definitiva, de varios ingredientes que la obra terminada permitirá saber hasta qué punto resulta recomendable, porque para ella reservamos decisiones clave, cuánta sal y cuánto picante.

Y cuando la obra entró en uso devino sobretodo en espacio de amigos, en casi albergue, en lugar de reencuentros imprevisibles, algo público había conseguido recorrer toda la travesía para emerger en su puesta en funcionamiento.