MENCIÓN 2013
BARRACA TRASLÚCIDA . Murcia
descripcion fotos
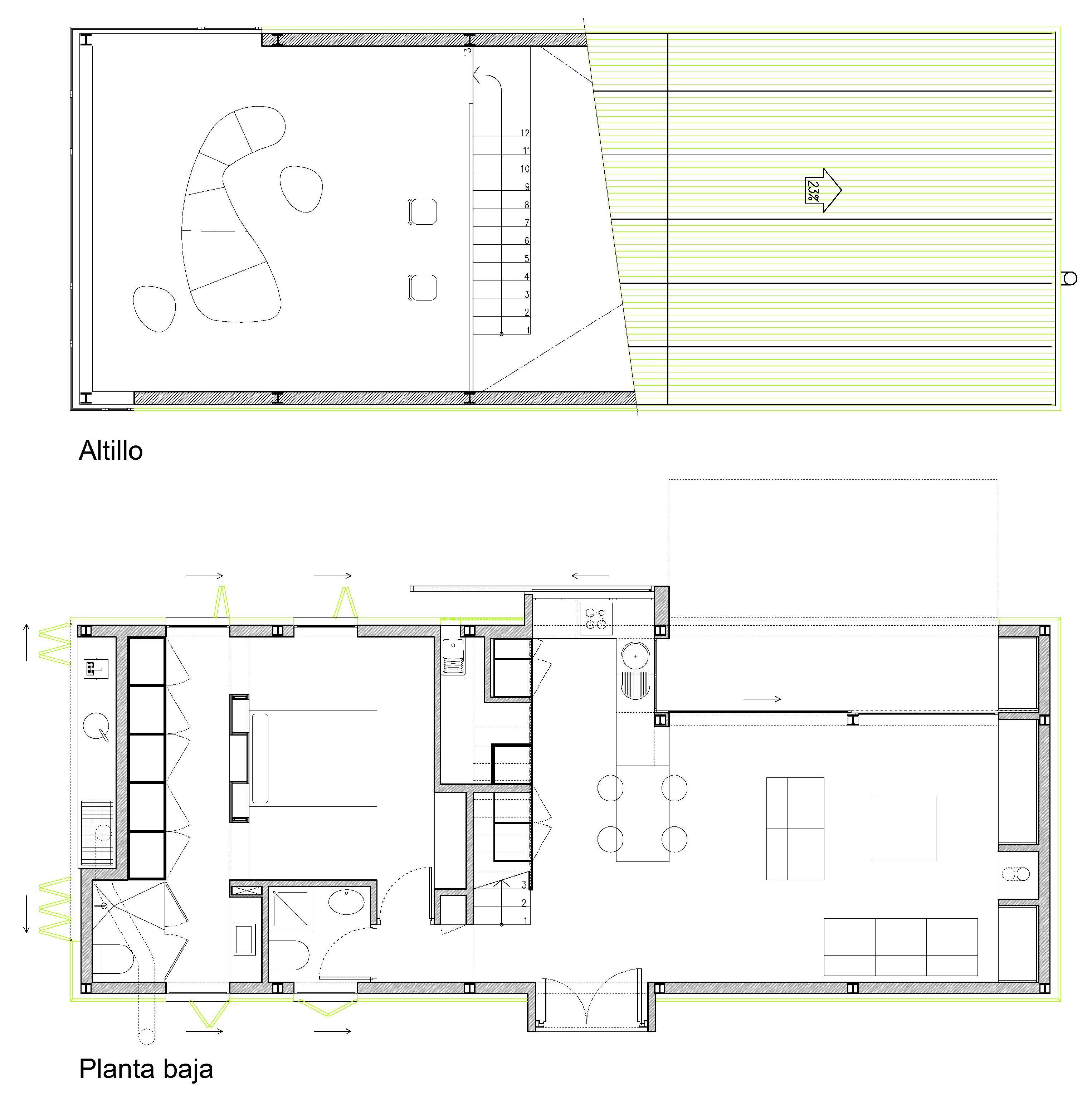
Barraca tradicional de la huerta de Murcia Despiece de componentes constructivos Frente principal cerrado y abierto Frente lateral cerrado y abierto Estructura de aparcamientos e instalaciones Vista de pájaro del salón desde el altillo Salida del salón a la terraza Comedor, cocina y acceso al altillo Dormitorio principal Vista de la huerta desde el altillo Banco de trabajo en el altillo Plantas de distribución
Arquitecto:Carlos Sánchez García - Ángel Martínez García - Juan Antonio Sánchez Morales
Siendo la barraca  la vivienda tradicional de la huerta sorprende el poco valor que se le atribuye como solución de síntesis en la concreción de un programa doméstico para un territorio dado, cuando precisamente reúne una gran cantidad de aciertos en la respuesta a las demandas básicas.

De otra parte construir en seco representa una serie de ventajas de orden genérico:
  • en lo económico, una significativa contención de costes
  • en lo temporal, una reducción importante de los plazos de ejecución
  • en seguridad, un aumento significativo
  • en relación a los residuos, su práctica desaparición
  • en confort, una importante optimización
  • en relación al diseño, una cierta ampliación de los recursos previsibles.

Nuestra intención con este trabajo ha sido iniciar la concepción de un producto doméstico ligero, tecnológicamente actualizado y suficientemente flexible para constituirse en solución viable para demandas de un sector de población medio.

Para ello se descompone la totalidad de elementos del sistema en todas las unidades necesarias hasta poder imaginar la completa recopilación de los componentes que convenientemente empaquetados pueden transportarse hasta cualquier emplazamiento de destino.

El volumen final del montaje es un prisma trapezoidal que contiene una planta y media de programa. En la planta baja se dispone el espacio principal de relación compuesto por un área que contiene cocina, comedor, estar y una amplia relación con el exterior. El resto es un dormitorio principal que dispone de aseo y vestidor con ventilación cruzada asegurada. Arriba se crea un altillo amplio y sin programa concreto que puede permitir numerosos usos y, si se requiriera, distribuir en dos dormitorios y un aseo.

El prisma se propone envuelto en policarbonato celular, que contribuye sustancialmente al aislamiento térmico y transmite una sorprendente sensación de ligereza, y se perfora con elementos que establecen numerosos contactos interior-exterior, protegidos por celosías metálicas que también permiten la graduación lumínica en los interiores.

En el interior se propone panelar el máximo de las superficies verticales y de techo en madera, dejando su color natural en los espacios comunes y pintando en blanco en los más privados. Los pavimentos se resuelven en hormigón continuo fratasado directamente in situ.

El conjunto debe conservar el máximo de tierra libre en su cota original al efecto de rodear la edificación de frutales hasta conseguir el máximo de integración en ese ambiente.