PREMIO 2013
ÁTICO ESPECULAR . Murcia
descripcion fotos
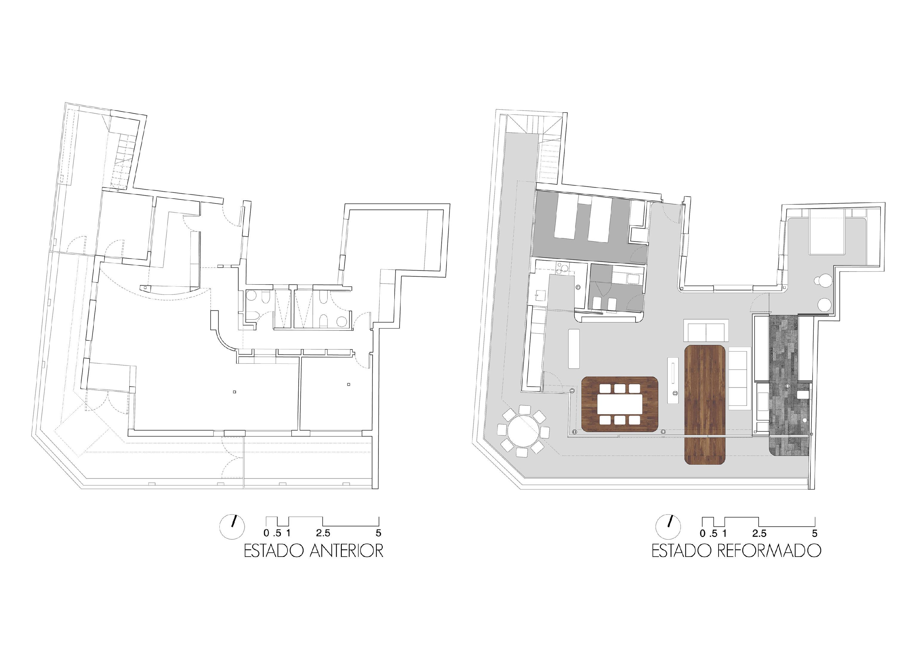
Salón Estado anterior Continuidad interior-exterior Vista interior Comedor Baño principal Cocina Dormitorio principal Vista interior Banda continua Terraza chill-out Comparativa Planta estado anterior - Planta estado reformado
Arquitecto:Luis Clavel Sainz - Manuel Clavel Rojo / Promotor:María Manuela Aguilar-Amat Prior / Constructor:Grupo Adir / Arquitecto técnico:David Hernández Conesa / Colaborador:Elena García Jiménez - Diego Victoria García - Rubén Alcaraz Marín

El proyecto, situado sobre la cubierta del edificio de José Antonio Rodríguez, La Alegría de la Huerta (protegido con grado 2), consiste en la reforma de una vivienda que había perdido su cualidad de ático al haberse acristalado parte de las terrazas con una escasa ventaja funcional. Por otro lado, aun siendo el programa requerido el mismo que el original, la distribución existente fragmentaba el espacio en exceso.

Procedimos a desmontar los añadidos en las terrazas, recuperando el volumen original, y aligeramos el cerramiento de la fachada sur. En el interior, ordenamos el programa en torno a un espacio central continuo. Todo a fin de conseguir la mayor diafanidad del espacio e incorporar la terraza como parte de la vivienda.

A fin de potenciar este efecto, suelo y techo se materializaron en dos planos blancos reflectantes continuos: un pavimento de resina de poliuretano que garantiza la continuidad interior-exterior y un techo tensado de pvc que se prolonga hacia el exterior en forma de cornisa de chapa de aluminio para proteger el acristalamiento sur.

Sobre estos planos se insertaron unas islas de similares geometrías que, en el caso del suelo, delimitan las principales áreas funcionales (tarima de teca con junta de barco en zonas estanciales y piedra del cabezo en el baño), y en el techo concentran la iluminación ambiente y de acento y, puntualmente, las rejillas de impulsión de aire acondicionado.

Dos paramentos de vidrio lacado negro y una banda continua acabada en madera de nogal delimitan el espacio verticalmente. Sobre esta última se integraron los huecos a patio interior haciendo uso de la misma geometría empleada en suelo y techo.

La necesaria aparición de pilares exentos debido a la redistribución de la planta se resolvió incorporándolos como elementos de iluminación, revistiéndolos de chapa perforada. En coherencia con el proyecto se diseñaron dos muebles en chapa de acero lacada: uno como apoyo de la cocina y otro que alberga las instalaciones audiovisuales.

Esta repetición de geometrías y color, reforzada por el acabado reflectante de suelo y techo, sugiere la imagen especular que caracteriza el proyecto.