MENCIÓN 2011
REFORMA SEDE BOLETÍN OFICIAL . Murcia
descripcion fotos
PExbeXnZfL (*) DWwlNS3wGX cF4YK3nViu xb33X4WVoT V8OO0A2MX6
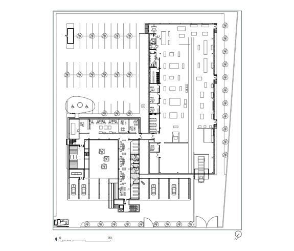
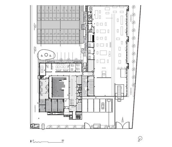
Arquitecto:Pablo Carbonell Alonso / Promotor:Boletín Oficial de la Región de Murcia / Constructor:Contrucciones Villegas - Sol Sureste / Arquitecto técnico:Juan Manuel Martínez Saura / Colaborador:Enrique Ochando Martínez
Arquitectura, vegetación, energía y agua. Cuando el BORM decidió realizar una ampliación y una redistribución de sus instalaciones en el año 2007, desde el primer momento vimos que esta oportunidad debí­a aprovecharse para ir más allá y resolver una serie de carencias bioclimáticas que tení­a el edificio desde su origen, pero también para sacar el potencial del diseño que Enrique Carbonell habí­a ideado, para así­ acercar la Imprenta Regional al concepto de edificio sostenible.

Energí­a Renovable: Integración como suma de beneficios aí±adidos. Se diseñaron 3 instalaciones independientes (parking trasero, sobre cubierta y sobre patio interior) para poder llegar a una potencia total de 100 kW.

Algunos de los beneficios conseguidos mediante la integración de estas  instalaciones son la recogida de agua de lluvia para su posterior reutilización, la reducción del exceso de radiación solar sobre el edificio y la creación de un microclima en el patio interior.

Gestión del agua: Objetivo de consumo cero para el agua no potable. Este proyecto ha querido ser sensible al tremendo problema de escasez de agua que sufre todo el sureste espaí±ol, intentando que toda la demanda de agua no potable se cubra sin aportación del suministro. Para ello, las pérgolas de la instalación fotovoltaica se han diseñado de manera que recojan el agua de lluvia y la acumulen en depósitos enterrados, pensados para cubrir los largos periodos sin lluvia de nuestra región.

Eficiencia energética: Una óptima utilización del recurso del sol. El edificio presentaba mucha superficie acristalada en sus fachadas, con los inconvenientes climáticos del efecto invernadero, así­ como incomodidad por reflejos y exceso de radiación para los puestos de trabajo. Estos problemas se han solucionado creando filtros solares: por un lado la pérgola de vidrios fotovoltaicos sobre el patio interior, protegiendo los despachos que vuelcan al mismo; por otro las placas fotovoltaicas de cubierta, que colocadas horizontalmente crean una especie de cubierta ventilada, y por último las lamas orientables en las fachadas.

Calidad ambiental: Un microclima para el patio interior. El patio interior se ha potenciado como corazón revitalizador, creando un jardí­n cuyo diseño está í­ntimamente relacionado con el microclima que la nueva piel fotovoltaica va a crear. Un microclima de menor radiación solar y mayor capacidad para retener agua y humedad, es decir, las características ideales para el bosque de ribera. Es por tanto un jardí­n frondoso pero autóctono y sin consumo de agua aportada.

Como consecuencia de lo anterior el BORM disfruta de un patio interior que aumenta la calidad ambiental del edificio, tanto visual como fí­sicamente. Este jardí­n generado gracias a las nuevas condiciones medioambientales de la piel fotovoltaica y los nebulizadores, mejorará las condiciones del aire, ayudará a regular la temperatura y humedad, y servirá para crear un entorno de trabajo más agradable