MENCIÓN 2011
CONJUNTO ESCÉNICO EN LOS MARINES . Cartagena
descripcion fotos
A4zDSsS3G0 KVeJUe3FWw LdrZc1ploO FywbHZTwnu
Arquitecto:Martín Lejárraga / Promotor:Asoc. Vecinos de Los Puertos de Sta. Bárbara & Excmo. Ayuntamiento de Cartagena / Constructor:EALSA (Fase 1) - ELECTROGALIFA (Fase 3) - TAMAR (Fase 2) / Arquitecto técnico:José Manuel García / Colaborador:Florentino Regalado - Julián Lloret - Daniel Ruiz Zurita
El paisaje con una dimensión más = una realidad deformada y corregida por el tiempo, que capta y monta diferentes tomas y visiones, que quedan reflejadas en la imagen final. 

Un asalto panorámico a la perspectiva monofocal canónica.
La actuación se sitúa en un terreno de uso público, de la Asociación de Vecinos de Los Puertos de Santa Bárbara de Arriba (Cartagena), donde ya se levanta su Museo Etnográfico (Rural) y se recrean escenas tradicionales de la vida en el campo.

El conjunto escénico se posiciona en el extremo Sur del recinto, en la propia esquina de la parcela, consiguiendo así varios objetivos:
- liberar espacio general de terreno.
-aprovechar el ángulo de esquina para la propia configuración de la pieza.
-acercarse al exterior, recorrer el paisaje desde dentro.

Un pequeño auditorio que no sólo sirve a su propósito de alojar representaciones, sino que puede ser detonante y complemento  de toda una serie de situaciones que generan a su alrededor.

La arquitectura como actividades de la gente y los requisitos del lugar. 

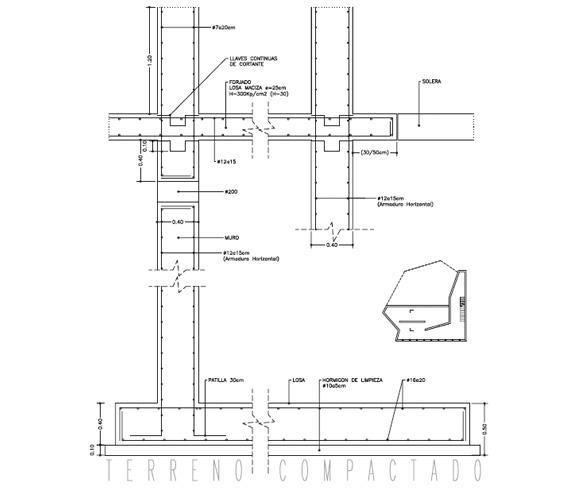
Sobre la plataforma base se levanta el fondo de escena, de doble fondo, con dos caras diferenciadas, construidas en hormigón y en barras de acero corrugado, que delimitan un espacio interno abierto que da servicio a los artistas y genera un recorrido elevado que se asoma secuenciadamente a las ventanas que miran al paisaje.

La configuración final del proyecto se debe a su adaptación a las variables condiciones del contexto económico en el que se desarrolló la ejecución del mismo. El esqueleto de armado que remata el proyecto refleja las diferentes transiciones y fases por las que ha transcurrido el proyecto.