Premio especial 2009
ACTUACIONES DEL PROYECTO INTEGRAL DEL TEATRO ROMANO DE CARTAGENA . Cartagena
descripcion fotos
YtMzxeMzqj AZ1QH2w8HE R2UV4PxTPC uv9Y7vJPly oVsHTthqn4 zAntenJ77w emV6Bo45MT LNamdb7wBO hSdcaHtYWU iJWiyDforL OIrG2U6Q9f sfJcpTYlh4 y3P02AJHVX wkUK2v7gNW TMwXHaMOb4
Arquitecto:José Rafael Moneo / Promotor:Fundación Teatro Romano de Cartagena / Constructor:UTE- Azuche-Villegas / Arquitecto técnico:Antonio Martínez - Santiago Hernán / Colaborador:Ángel Huertas Suanzes - Carla Bovio - José Manuel Nicás
El hallazgo y excavación del Teatro Romano de Cartagena en estos últimos años ha sido el acontecimiento más importante en la rica historia arqueológica de Cartagena, dejando al descubierto un monumento excepcional, que hace difícil entender, dadas sus dimensiones, cómo permaneció oculto durante siglos. La reutilización de parte de la escena como mercado en época romana y la superposición parcial de la iglesia de Santa María la Vieja sobre la parte superior del Teatro, episodios que hoy valoramos como dos de los rasgos característicos de mayor interés en el conjunto arqueológico del Cerro de la Concepción, ponen de manifiesto lo que ha sido una compleja concatenación de construcciones de muy diversas épocas que han convertido esta zona de la ciudad en un auténtico libro de historia.

La considerable riqueza de piezas halladas durante las sucesivas campañas de excavación en el Teatro plantea la oportunidad de dotar a la ciudad de un Museo del Teatro Romano. Y así, el Museo da pie a incorporar el Palacio de Riquelme, comenzado a mediados del siglo XVIII, y a incardinar la iglesia de Santa María la Vieja en el conjunto, convirtiendo el Teatro en la última y más notable pieza presentada en el Museo. Como complemento de los trabajos encaminados a la integración del hallazgo en la ciudad y a su correcta incorporación a la trama urbana, se plantea el Parque de la Cornisa del Teatro Romano, actualmente en construcción.

El proyecto incorpora y enlaza edificios construidos y vacíos hoy existentes en la trama urbana de la ciudad creando un recorrido museí­stico que, permitiendo al visitante y estudioso salvar una notable diferencia de cota entre el Puerto y el Teatro, haga posible el acceso a este. El Museo, por tanto, se plantea como itinerario desde el mar a las cotas altas culminando la visita con la inesperada aparición del imponente espacio que hoy se adivina en las cáveas ya excavadas. Esta promenade -abusando una vez más de la expresión lecorbuseriana-, que va de las cotas bajas a las altas, discurre a través de espacios expositivos iluminados por un complejo sistema de lucernarios y se produce sirviendo al visitante de medios mecánicos de elevación, tanto escaleras como ascensores, que sirven de marco a la presentación de las piezas encontradas en las campañas de excavación. Se trata, por tanto, de una promenade musealizada.

El Museo se desarrolla en dos edificios bien diversos, unidos entre sí­ por un corredor dispuesto bajo la calle: el primero, que incorpora las crujías aún en pie del Palacio de Riquelme, se organiza en torno a un patio a modo de impluvium. El segundo edificio, enclavado entre las medianeras de la calle, alberga las Salas de Exposición, así­ como los medios de elevación hasta la cota de acceso al corredor bajo Santa María la Vieja (+17,01 m), que conducirá a los visitantes hasta el Teatro. El recorrido museí­stico se completará dentro del Teatro por los pasillos de las cáveas y por las escaleras radiales de las mismas, procurando que el público no circule por los graderí­os, evitando la degradación del Teatro excavado en la roca pizarrosa del Cerro de la Concepción.

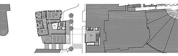
El plano de situación plantea muy claramente la relación entre los diferentes componentes arquitectónicos de este proyecto. A nuestro entender, muestra la voluntad de hacer ciudad que inspira a los autores de este proyecto, no solo atento a los espacios interiores del Museo sino también a los espacios públicos de una ciudad como Cartagena en la que tan densa es la historia urbana.