Premio 2009
AMPLIACIÓN Y REFORMA DEL MUSEO DE LA CATEDRAL . Murcia
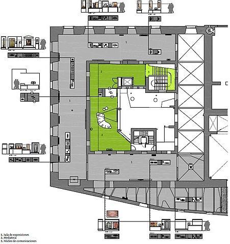
descripcion fotos
Arquitecto:Antonio Abellán Alarcón - Juan Antonio Santa-Cruz Alemán / Promotor:Obispado de la Diócesis de Cartagena-Murcia. Convenio D.G. Cultura Región de Murcia / Constructor:Grupo Rico Restauradores (Antonio García Rico) - GEOCISA (Juan José Sánchiz, Tomas Vidal, Julio Alburquerque) / Arquitecto técnico:Miguel Ángel Cárceles - Luis Fernando Perona / Colaborador:Oliver König - Juan Antonio Sánchez Pravia - Jasna Bajlo - Víctor Sánchez Sequero
Encargo y Objetivo.

Este proyecto es la respuesta a un encargo doble. Por un lado, la reforma de los espacios del antiguo museo, situados en la sala del claustro que se conserva en planta baja, y las capillas contiguas con la incorporación de los restos arqueológicos recuperados en recientes excavaciones en la zona de acceso. Y por otro, la ampliación de su superficie expositiva mediante la incorporación, en planta primera, de tres viviendas de los canónigos.

El verdadero desafío era proponer la reapertura del museo como el inicio de un periodo de reflexión sobre el futuro del conjunto.

Criterios de intervención.

Reversibilidad constructiva: Evitando soluciones y técnicas que implicaran imposiciones sobre un proyecto posterior, como reposición de sillería, reconstrucción volumétrica, aplicación de técnicas de reparación de la piedra sin marcha atrás, eliminación de lienzos de ladrillo de distintos momentos históricos, apoyo de elementos nuevos en antiguos, etc.

Transparencia y neutralidad arqueológica. (Física y documental)
- Física: Manteniendo visible el máximo de información arqueológica aparecida, y retrasando la evaluación de los distintos estratos en cuanto a la conveniencia de su recuperación, eliminación o cubrición.
-Documental: Registrando en fichas de campo, fotográfica y planimétricamente, toda aquella información que ha debido volver a quedar oculta.

Espejismo de recuperación esencial.
Los criterios de reversibilidad y transparencia han sido de aplicación innegociable sobre los elementos históricos principales: aquellos que deben ser interpretados de inmediato como componentes relevantes de la estructura arquitectónica del monumento o transformaciones posteriores. Sin embargo, a la hora de introducir los ajustes necesarios para resolver las condiciones funcionales que exige la reapertura del museo, hemos considerado conveniente que las técnicas constructivas y acabados fueran complementarias e iniciaran una aproximación a la recuperación de las condiciones espaciales originales del Claustro, mejorando su comprensión y favoreciendo un reencuentro menos frustrante con el monumento. Una paleta de materiales contemporáneos -césped artificial en el ámbito del patio, pavimento de resina brillante en los forjados que se construyeron desmontando las bóvedas, techos de luz natural bañando la fachada oeste del claustro (la principal durante siglos), etc.- debería ayudar al visitante a discriminar, casi inconscientemente, entre lo sustancial y aquello que es efímero, que podría haber sido abordado de otras muchas maneras porque tiene "fecha de caducidad".

Planta Baja. Memoria constructiva:

Pasarela de vidrio, madera de roble y acero inoxidable, sobre excavaciones arqueológicas consolidadas -dibujo para destacar los cimientos de cinco columnas alineadas de la mezquita.

Retirada de enlucidos de mortero de cemento y de yeso en paramentos verticales. Limpieza y enrasado de juntas y rozas con mortero de cal sin reposición de sillerí­a ni reconstrucción volumétrica.

Restauración de pinturas y elementos decorativos.
Raspado y limpieza de nervios de piedra y escayola. Repintado de bóvedas, excepto nervios. Retirada de suelo existente de terrazo, hasta nivel de suelo gótico no cubierto por material que impida su ventilación. Colocación de suelo elevado de tarima de madera de roble sobre tablero de DM hidrófugo y subestructura de perfiles metálicos sobre base de hormigón poroso para ventilación de la humedad ascendente. Colocación en suelo técnico de instalaciones de climatización y varios. Colocación de instalaciones de iluminación y seguridad, con acometida desde el suelo técnico, mediante tubo de acero galvanizado y flexible de plástico protegido fijados a pared con abrazaderas ancladas en juntas de mortero.

Núcleo de comunicaciones e instalaciones. Memoria constructiva:

Demolición de forjado en esquina sureste del patio original. Ejecución de escalera de hormigón visto en tres tramos, con entrada construida de jambas y dintel de apoyo propios, dentro de hueco existente. Apoyos laterales en muros secundarios, y formación de hueco de desembarco en muro secundario ampliando hueco existente con jambas y dinteles de apeo propios.

Construcción de aseos y cuartos de instalaciones en crecimiento hacia patio exterior no visitable.

Planta primera. Memoria constructiva:

Demolición de tabiquerí­a y falsos techos de las viviendas. Retirada de pavimentos hasta el forjado de vigas de madera y acero; y reforzado con nervios de hormigón armado sobre viguetas de madera y capa de compresión, previo aligerado con poliestireno extruido.

Arriostramiento de los muros maestros a nivel de suelo y techo de planta primera mediante cosido de tirantes de acero. Retirada de enlucidos de yeso en paramentos verticales. Limpieza y enrasado de juntas y rozas con mortero de cal sin reposición de sillería ni reconstrucción volumétrica. Reconstrucción de jambas y huecos de ventanas con yeso, pintado en las caras interiores y acabado de esponja sin pintura en las caras enrasadas al paramento de piedra y ladrillo vistos. Restauración de pinturas y elementos decorativos.
Demolición de pequeños tramos de tabiquerí­a resistente o ampliación de huecos, previo estudio de distribución de cargas y construcción de apeos y refuerzos.

Planta primera y cubierta. Memoria constructiva:

Demolición de cubierta existente en sala triangular junto a fachada oeste, en peligro de derrumbe por problemas estructurales y de estanqueidad; y construcción de nueva cubierta terraza de hormigón armado y lucernarios de vidrio.

Proyección de espuma de yeso para ignifugación del forjado de techo de madera y yeso.

Prolongación de la espuma de yeso en paramentos verticales para cubrir superficies especialmente deterioradas y desplomadas, recortando los arcos originales no desaparecidos, y retrasando elementos constructivos secundarios sin ocultarlos completamente.

Colgado en techo de bandejas y maquinaria de instalaciones vistas de climatización, iluminación, seguridad y varios.

Aplicación de pavimentos continuos de resina epoxi en salas de exposiciones y de césped artificial en sala de mediateca -espacio del patio original.