Premio 2009
SEDE COLEGIO OFICIAL APAREJADORES Y ARQUITECTOS TÉCNICOS . Murcia
descripcion fotos
(*)
Arquitecto:Edith Aroca Vicente - José María López Martínez / Promotor:Colegio Oficial de Aparejadores y Arquitectos Técnicos de la Región de Murcia / Constructor:Martínez Arce S.L. / Arquitecto técnico:Patricia Gabarrón Sánchez / Colaborador:Fernando Bastida Pinar - José Francisco García Martín
El proyecto debía solventar los problemas de un entresuelo de altura muy limitada en un edificio existente. A partir de aquí el proyecto indaga en los espacios que articulan cada una de las unidades y la capacidad de estos de unir o independizar. El acceso, la escalera y el hall se convierten en los espacios vertebradores de la intervención.

La intervención apuesta por el blanco y negro, las texturas metálicas y el vidrio. Se estudian los
espacios y su tratamiento a fin de solventar lo limitado del espacio, tratándolo como una escenografía y modificando la percepción alto-largo-ancho mediante el uso de color y la situación estratégica de espejos.

La iluminación se introduce entonces como hilo conductor entre los distintos espacios. Como elemento de orientación dentro de un espacio en el que han desaparecido los límites. El local de acceso se plantea como una gran linterna que sirve de reclamo respecto al tráfico peatonal de la avenida.

Programa de necesidades y condicionantes previos:

El COAATMU había adquirido un entresuelo en un edificio existente en el centro de la ciudad para la ubicación de su nueva sede. El proyecto, además de un programa inicial organizado en despachos individuales, debí­a solventar los problemas de un entresuelo en un edificio de viviendas de más de 30 años: patologías, instalaciones, circulación de vecinos¿

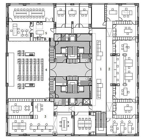
El objetivo era que la propuesta resolviera con sencillez el programa funcional y el acceso independiente (a través de un local en planta baja), convirtiéndose esto en generatriz de todo el proyecto. Para ello la propuesta inicial fue la simplificación del programa en áreas:

01. Área de visado y gerencia

02. Gabinete técnico

03. Salón de actos

04. Área de dirección

Justificación de la solución compositiva adoptada:

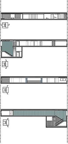
El local consistía en un espacio cuadrado que incorporaba los dos núcleos de escalera del edificio. Los dos núcleos se regularizaron,absorbiendo cuartos húmedos y espacios de almacén, y se utilizaron para la articulación del espacio, ya que delimitaban tres ámbitos diferenciados en los que se insertaban tres áreas funcionales: gabinete técnico, salón de actos, área de dirección. Perpendicularmente se dispone el eje de articulación y el Área de Visado y Gerencia.

A partir de aquí el proyecto indaga en los espacios que articulan cada una de estas unidades y en la capacidad de estos de unir o independizar en función de las actividades que se estén desarrollando en cada momento. El acceso, la escalera y el hall se convierten así en los espacios vertebradores de toda la intervención.

Conscientes de la representatividad de la sede respecto a un colectivo, el proyecto no tiene ninguna concesión a lo arbitrario. Apuesta por el blanco y negro en las aplicaciones de color y las texturas metálicas y el vidrio en los revestimientos. Existe un estudio exhaustivo de los espacios y su tratamiento (color, uso de texturas, uso de espejos¿) a fin de solventar lo limitado de un espacio de entresuelo, tratándolo como una escenografía e intentando modificar las percepciones estándar de alto-largo-ancho, generando espacios sorpresa.

Justificación de la inserción urbana propuesta:

Dadas las reticencias de los vecinos a cualquier operación en fachada, la intervención en el perí­metro y de proyección del COAATMU a la ciudad se ha limitado a la apertura de un gran hueco en el entresuelo, coincidente con el Salón de Actos, y al tratamiento de la fachada del local de acceso. El local de acceso se plantea como una gran linterna (con retroiluminación programada en color) que sirva de reclamo respecto al tráfico peatonal de la avenida, ya que el local de acceso se encuentra en una calle lateral. El hueco de la fachada principal servirá como elemento de proyección del COAATMU a la ciudad.

Características constructivas generales:

Al tratarse de unas oficinas con atención a público, preocupaba especialmente el comportamiento acústico y la iluminación de las estancias. El pavimento elegido para resolver esta cuestión ha sido una moqueta de PVC con textura; así mismo se han aplicado techos absorbentes acústicamente para evitar ecos y reverberación. En las zonas de tránsito se ha utilizado un pavimento de granito negro o mármol blanco y techos lisos.

Para el revestimiento de la escalera y del hall de acceso se ha utilizado una tela de acero inoxidable que se ha colocado tensada de suelo a techo. Toda la tela se ilumina bañándola indirectamente. El vestíbulo de entrada se ha revestido con vidrio laminado con una luna de espejo para aumentar visualmente su superficie. A este revestimiento se han incorporado motivos geométricos en el laminado.

El núcleo central de la sede se ha revestido de vidrio laminado, que en su cara posterior reproduce el mismo motivo geométrico que el área de acceso, pero en este caso fondeado en negro o blanco según el área.