PREMIO REGIONAL 2011
MUCAB MUSEO Y CENTRO DE USOS MÚLTIPLES . Blanca
descripcion fotos
(*) hw2JOG0nwP ztwC9VFB7r 6hQY38hTEf 56PHxOhKDn
Arquitecto:Martín Lejárraga / Promotor:Excmo. Ayuntamiento de Blanca / Constructor:VILLEGAS Construcciones / Arquitecto técnico:Francisco Pérez - Manuel Gil de Pareja / Colaborador:Mariano Alegría - Mar Melgarejo - Juan García Carrillo - José Ibeas - Arancha Fernández - Julian Lloret
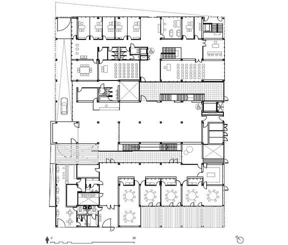
El conjunto del MUCAB, (Museo, Escuela de Música y Centro de Desarrollo Local, de la Mujer y de la Juventud, Guarderí­a / Centro de Atención a la Infancia), situado en el municipio de Blanca, se ofrece como un núcleo de representatividad local, desde el que se crea una nueva tensión urbana para potenciar la actividad junto al entorno del rí­o Segura.

Este edificio, que concentra usos muy diversos, se agrupa en tres paquetes programáticos conectados por patios. Cada uno de ellos funciona tanto de manera independiente, como comunicándose entre ellos, permitiendo el solape de programas, la comunicación visual y su ocupación temporal.

El museo ocupa la posición central, y se organiza mediante salas de diferente condición y geometría, pudiendo también ocupar como zona expositiva la cubierta sobre la guardería en el nivel 1. La comunicación general del museo se produce desde una gran escalera en fachada que permite contemplar las vistas al rí­o y al pueblo.

El edificio norte, volcado al área urbana de la ciudad, alberga variedad de usos relacionados con los equipamientos sociales públicos. Los diferentes contenidos se desarrollan conforme a una estructura regular, separados por niveles y compartiendo zonas comunes, patios y terrazas abiertas.

La guardería se sitúa en planta baja, con una posición privilegiada hacia el río y la urbanización, y disfruta de una doble orientación con patios al sur y al norte.

El aparcamiento situado bajo rasante es el arranque del edificio y ocupa no sólo la proyección del mismo, sino toda el área disponible al sur de la parcela. Los patios superiores perforan su cubierta introduciendo luz natural y permitiendo la ventilación y la conexión visual con el resto de usos del edificio en cotas superiores.