Mención 2009
VIVIENDA PARA UN PINTOR Y DOS GATOS . Cartagena
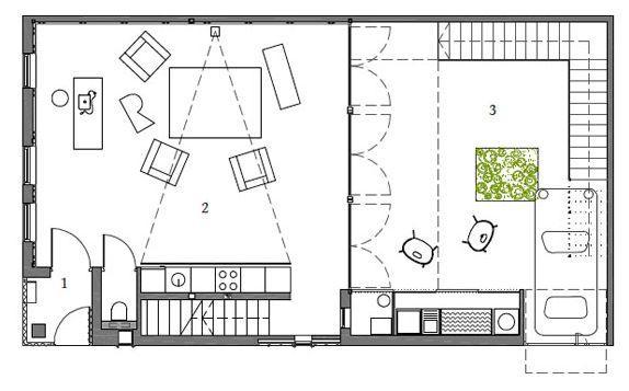
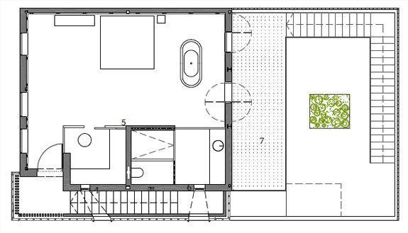
descripcion fotos
qVx0J6pZs6 QY560UavrG es4w8doAL6 wLcY0uax8b yx2palMQ16 cLgKO2SMYs iOc3WOw8Vy (*) 8yzlj3m3bP sPaBNi46Wf iYtfqjjyga P6t3Zwnzxn KDozscyU4J
Arquitecto:Martín Lejárraga / Promotor:Ángel Mateo Charris / Constructor:Juyfra - Villegas Construcciones / Arquitecto técnico:Rafael Checa / Colaborador:Julián Lloret

El estudio Paisazares es un espacio de trabajo concebido para un pintor y un fotógrafo. Un espacio de trabajo insertado en una parcela de secano en Torre Pacheco. El nombre, Paisazares, proviene de fusionar el apellido del pintor, Llamazares, y el paisaje circundante.

MF Llamazares, pintor

MF construye una realidad otra a partir de telas blancas y lo queda tras su ausencia, sombras negras. Blancos y negros, presencias y ausencias abstractas se ponen en juego para construir una figuración propia. Trabaja con pares, con dualidades, y construye significados a partir de la ambigüedad que la manipulación de los opuestos genera. Así construimos nosotros nuestro proyecto. Para que se entere, para habitar la ambigüedad, el umbral, para que trabaje a gusto. Elaboramos una cartografía de elementos que intervienen en la toma de decisiones y nos divertimos adivinando parejas que se enfrentarán en nuestro territorio. Entre estas fuerzas se quiere situar el proyecto. Queremos por tanto materializar el interface. Nos dan miedo las certezas. Construimos las relaciones entre ellas, y las habitamos. Materializamos la distancia entre un padre y un hijo, investigamos la ¿diferencia? entre un pintor y un fotógrafo, proponemos la igualdad entre las obras y los amigos, nos colocamos entre una estructura técnica y una cultural.

 

DF, fotógrafo

Además del pintor, tenemos un fotógrafo. Ambos son padre e hijo, un joven y un adulto, un conocido y un desconocido, un pintor y un fotógrafo. El proyecto no puede ser ajeno a esta polaridad. En ese interface entre ambas realidades se produce todo el milagro de la vida y el proyecto quiere situarse allí, donde más duele. Fotografiar es como pintar pero en joven. No hay un taller arriba y otro abajo, vemos borrosas las diferencias entre pintura y fotografía. Creamos un plano continuo de trabajo que gestiona estos dos modos diferentes de aproximarse a la realidad. La tensión entre ambos marcará en cada momento la diferenciación espacial, pero será siempre débil, tierna, flexible y a la vez incómoda. Creemos que debe ser así. Aparecen un jardín pintado y un jardín retratado para figurar esta diferencia. Os pelearéis por el espacio, por la luz, pero también os pelearéis con vuestras obras, con las que conviviréis, y cuya presencia os irá pesando y dando forma material al espacio, haciendo callo tal vez junto a ese espacio vuestro, pero eso será con el tiempo, siempre con y junto al tiempo.