Mención 2009
REHABILITACIÓN DEL CONVENTO DE SAN JOAQUÍN Y SAN PASCUAL . Cieza
descripcion fotos
WJfemj1G9t VnAWkdhvW4 pvfaKti5So P3wbBwpYTJ PfoF03E5Q9 aWcbpjVxS3 0pZGd4Tvqw N4vHEkN03p 0pZGd4Tvqw
Arquitecto:Martín Lejárraga / Promotor:Excmo. Ayuntamiento de Cieza / Constructor:Villegas Construcciones / Arquitecto técnico:Pm Arquitectura y Gestión, Antonio Pérez
¿La forma del Convento es la común y ordinaria de los Conventos da nuestra descalcez; pero en lo común hay particulares primores, que lo hacen especial. Todo al Convento es alegre y devoto, especialmente la Iglesia, pues parece que infunde devoción. La obra es da cal y canto, con esquinas da piedra labrada. Salió toda tan fuerte que no ha hecho quebranto por parte alguna, es tan proporcionada y vistosa que es admiración de los que la miran, y comúnmente se atribuyen sus aciertos y primores a las manos que la fabricaron, que fueron las de muchos y grandes siervos de Dios¿.
                                          (Padre Salmerón, fundador del Convento)


El Convento responde a la tipologí­a austera, instaurada por la Orden Franciscana en todas sus
fundaciones. Comenzó a edificarse en el año 1685, y en los primeros años del siglo XVIII, tanto el
Convento como la Iglesia, adyacente, se encontraban definitivamente configurados.

La rehabilitación del Convento de San Joaquí­n y San Pascual se orienta a su nuevo uso para la Biblioteca Pública Municipal de Cieza, en la parte del mismo propiedad del Ayuntamiento (patio-claustro y naves E y S).

Exteriormente la intervención proyecta la creación de una plaza abierta y pública, accesible, que pretende unificar el conjunto de manzana, propiciando nuevos accesos adaptados tanto al
Convento/Biblioteca, como a la Iglesia y a la casa parroquial adyacentes.

Desde la entrada general-recepción se distribuyen los espacios en planta baja -patio, claustro y naves-, y se da acceso al núcleo de escalera y ascensor, que se sitúa en el encuentro de las dos naves (esquina SE), en la parte más deteriorada del conjunto y la que mejor organiza los recorridos interiores en las distintas plantas.

En planta semisótano se recupera la bodega existente en el Convento, que se destina a depósito-archivo de compactos, y se crea una nueva sala bajo la plaza pública destinada a sala de lectura y consulta, iluminada con luz natural por los lucernarios longitudinales a nivel de la plaza superior.

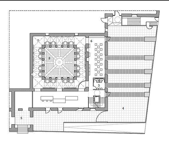
En planta baja y en relación directa con la plaza exterior, el uso infantil se concentra en la sala E, mientras el claustro recoge la zona juvenil de lectura-consulta-actividades.

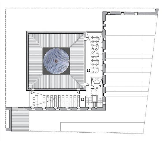
En el patio se propone una sala de usos múltiples, rescatado el espacio cubierto con una cíºpula acristalada que arranca a nivel de cubierta de claustro en la planta segunda, y el equipamiento con mesas plegables y sillas apilables.

La planta primera recoge la dirección y administración del edificio y las salas de informática, audiovisuales y hemeroteca.

La planta segunda se divide en dos salas de usos polivalentes (conferencias, cursos, talleres, etc.), cuyos volúmenes espaciales aumentan al rehabilitar la cubierta con un nuevo sistema estructural, de madera como el original, que optimiza el volumen capaz bajo la cubierta a dos aguas.

Las fachadas recuperan los huecos originales perdidos en reformas anteriores (plano interior) y mantienen los huecos nuevos practicados con las sucesivas reformas (plano exterior), fundiendo ambos con bocinas planas.

La creación de la plaza exterior concebida como un espacio público, accesible y abierto, permite un uso intenso genérico, y una ocupación directamente ligada a las actividades promovidas por la biblioteca. Se construye como una sencilla prolongación al exterior de las salas interiores, con el fin de crear una secuencia de recorridos que van desde la calle pública al disfrute de la propuesta en el proyecto, pasando por un espacio de tránsito con uso polivalente y adaptable a las necesidades de la ciudad (estancia, orquesta dominical, etc.).