Mención 2009
REHABILITACIÓN Y AMPLIACIÓN CASA RUIZ . Fortuna
descripcion fotos
brrFJoMR5P Pw8H4iR2ev gr4kAc4u7Z mBSIhAm8M1 BXRz3Cxjya bWKNRZxofu cSTwyHKZbs ZldQHMpnAL HTWA5fV2K3 Dkv1AqjQIH ocwMXEMrEC
Arquitecto:Armando Cano Redondo - María José Muñoz Mora / Promotor:Teresa Rodríguez Morera / Constructor:Santiago Calpena Pérez / Arquitecto técnico:Antonio González Rodríguez / Colaborador:David Navarro Moreno - Paparajote (Diseño Gráfico)
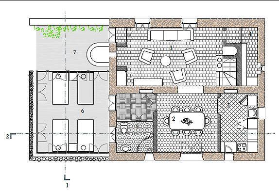
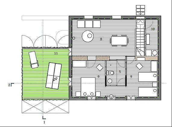
Partiendo de la necesidad y de la búsqueda de enraizar con la historia del lugar la primera decisión pasa por apoyarnos en las ruinas de una antigua vivienda.

Un apoyo físico y tipológico que conduce directamente a una reconstrucción de los elementos que aún se conservan, sobre todo en la planta baja, y a superponer una nueva construcción, contemporánea en su tipologí­a.

Por otro lado, se reutiliza el material de la demolición para su reubicación en la misma cota de la planta baja.

La nueva zona ejecutada donde antaño estuvieron los corrales se entiende como un espacio ambiguo, sin uso, abierto al exterior sensorialmente. La selección de las piezas procedentes del derribo según tamaños permite variar el grado de huecos en función de la orientación. El espacio existente entre esta piel-filtro ejecutada con jaulas de piedra (¿eran unos corrales?) y la piel-impermeable de la carpintería permite una continua ventilación.