PREMIO 2011
REHABILITACIÓN DE CUARTEL PARA USO UNIVERSITARIO . Cartagena
descripcion fotos
baABkjsLB3 (*) MoDddLQAbR oTSZJzx4Pf kMjMVM8drV
Arquitecto:José Manuel Chacón Bulnes / Promotor:Universidad Politécnica de Cartagena / Constructor:Ferrovial / Arquitecto técnico:Antonio José Alcaraz Castejón - José Angel Marín Saura / Colaborador:María Juana Sánchez - Ignacio Abad Cayuela - José Martínez
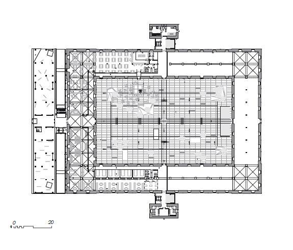
El Cuartel se construyó para albergar a los presidiarios que constituían la mano de obra del Arsenal. Del proyecto y de su  construcción se encargó el ingeniero militar Mateo Vodopich. Las obras se iniciaron en marzo de 1776. Hasta 1945 fue presidio. A partir de 1946 cuartel de instrucción de Marina. Ahora es Universidad.

Gracias al nuevo uso universitario se ha conseguido recuperar un rincón de la ciudad de libre acceso tras los más de dos siglos como presidio y cuartel militar. Llegó el momento de cambiar el carácter del edificio. El espacio cerrado y oscuro es invadido por la luz. Los muros sucios son sustituidos por paredes brillantes. El edificio creado para someter y castigar al hombre ha sido transformado para educarlo en libertad. Se han abierto las puertas, cortado las rejas, suprimidas las cadenas. Las grises celdas de la prisión ahora son aulas blancas y espaciosas. Los valores de la sociedad han evolucionado y la arquitectura ha hecho posible que este edificio se convierta en un símbolo para la esperanza.

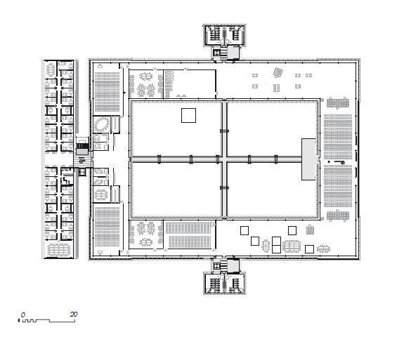
La intervención consta de dos partes: la rehabilitación del edificio histórico y la ampliación mediante la construcción de un 
edificio anexo para despachos de profesores. Los dos cuerpos están separados aunque se comunican con pasarelas de acero 
y vidrio. 

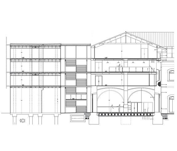
El edificio principal ha sido objeto de una intervención enfocada a recuperar los rasgos originales: recuperación de cubiertas a dos aguas -perdió la original en un incendio en 1946- y su fachada de piedra vista.  En la planta baja se ubican los servicios de biblioteca, zona administrativa y comedor y cafeterí­a; mientras que en las superiores se encuentran las aulas, despachos de decanato y salón de actos. En el edificio nuevo se ubican la sala de exposiciones en planta baja y despachos en el resto. Este edificio ha sido construido con materiales ligeros y transparentes para posibilitar la visión del edificio histórico. 

La gran fachada de vidrio ha sido cubierta con una piel de chapa de zinc de 0,8 mm perforada y plegada según indicaciones del  arquitecto. El resultado es una lámina translúcida de engañosa opacidad aunque sorprende su permeabilidad visual, protege del sol y no requiere mantenimiento ya que el zinc alcanza más de un siglo de vida. En el patio se ha ejecutado una estructura soporte de los toldos que evitan el soleamiento. Esta estructura metálica sirve también como paso de circulaciones y para llevar conducciones, cableado, focos, etc.