PREMIO 2011
REHABILITACIÓN DE COLEGIO PARA ESCUELA DE MÚSICA . Archena
descripcion fotos
(*) s1q77vw2fM zqszr1bDRX
Arquitecto:Alberto Gil Torrano - María José Guillén Guillén / Promotor:Excmo. Ayuntamiento de Archena / Constructor:Construcciones Arocan S.L.U. / Arquitecto técnico:Elena Gonzalvez García / Colaborador:Óscar Gutierrez - Álvaro Gil Torrano - Juan Antonio Gil Torrano - Eduardo Gil Torrano - Boamistura - Andrés del Barrio - Lieven de Groote
El alcalde fue a la primera jornada de derribo. Querían marcar los tabiques que podían mantenerse y cuales debían ser demolidos. El presupuesto era muy ajustado y el alcalde indicaba inquieto a los arquitectos: ¿y este? ¿ y este? Este tabique está perfecto, por qué no lo dejamos. Ellos le llevaron a la entrada y le animaron a que se imaginara todo ese espacio vacío.

MEMORIA DESCRIPTIVA. Con la realización del proyecto de Rehabilitación del Colegio Público Río Segura de Archena para su cambio de uso a Escuela Municipal de Música, nos enfrentamos ante la problemática de un edificio muy deteriorado pero con gran carga sentimental para el pueblo. El proyecto cambia el aspecto del edificio pero intenta conseguir que los niños, que han pasado por sus aulas, y quieran encontrar el alma de su antiguo colegio puedan hacerlo, esto se consigue colocando una 
nueva piel de chapa perforada que nos permite entrever la fachada original del colegio, además de proteger al edificio del sol. 

El principal cambio se realiza al introducir lo que nosotros llamamos ¿Caja de Luz¿, en la que hemos querido abstraer el sentimiento musical, esta configura el vestíbulo del edificio en el que aparecen dos piezas escultóricas, favoreciendo que el espacio se viva con gran dinamismo. Este nuevo volumen de acceso, está horadado en el exterior por unas geometrí­as que interpretan los ornamentos de los instrumentos musicales, haciendo que la gran Caja de Luz blanca quede impregnada por la música.

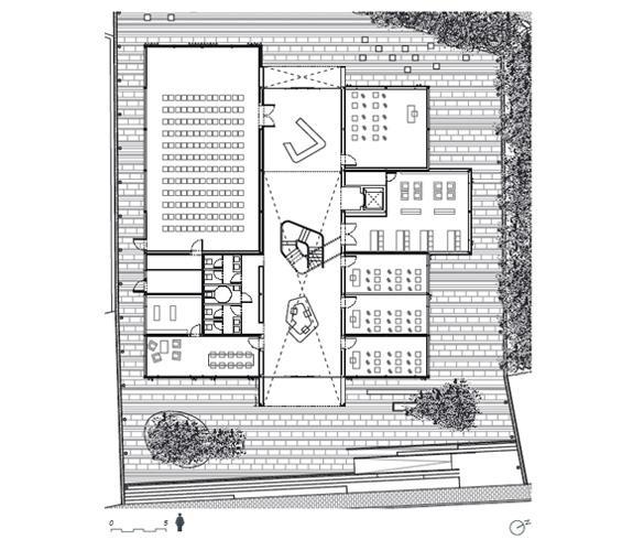
El cuerpo central que forma vestí­bulo y distribuidor se proyecta al interior y al exterior como una caja limpia entre los otros cuerpos del edificio. Estrategia: concentrar la fuerza de la propuesta. 

MEMORIA CONSTRUCTIVA. El edificio contaba con un gran mural obra del pintor Jose Mª Párraga situado en un pasillo del antiguo edificio y que actualmente ha pasado a formar parte de la sala de conciertos tras su restauración. 

La escalera se ha realizado de hormigón armado í­ntegramente, la barandilla es continua en el exterior y en el interior aparece un pasamanos a una altura constante que provoca un efecto de movimiento.  

¿La caja de luz¿ está realizada con un material avanzado, sin poros y homogéneo, compuesto de resinas acrí­licas modificadas y de minerales naturales. El dibujo realizado en la superficie de las placas, mediante fresadora de control numérico, rebaja el espesor en 5 pasos cada uno de un milí­metro. Esto produce que la fachada cambie a lo largo del día según incide el sol en ella. 

La traslucidez del material se consigue retro iluminando las placas, esto provoca el encendido del dibujo con diferentes niveles de intensidad de luz, debido a los diferentes espesores. La chapa microperforada que cubre el edificio es de perforación octogonal, recordándonos así­ las celosí­as utilizadas antiguamente en la zona para protegerse del sol. 
La piel de chapa le da al edificio un aspecto homogéneo, que deja entrever la antigua fachada, esta piel tiene una doble función, proteger al edificio del sol y proteger el edificio.