PREMIO 2011
SALA ESCOLAR LOS MOLINOS . Calasparra
descripcion fotos
SL5kO30DR8 (*) pVbgAdBscF TErimUC29u mEHg9zTnXj J091QZtYCE
Arquitecto:Pedro Antonio Díaz Guirado - Ángel Allepuz Pedreño / Promotor:Consejería de Presidencia-D. G. de Deportes - Excmo. Ayuntamiento de Calasparra / Constructor:CADE, S.L. - ZIMA desarrollos integrales, S.L. - CHC / Arquitecto técnico:Luis de Diego Fort / Colaborador:Iris Tomás Alarcon
El solar presenta diferencias de rasante muy pronunciadas en su parte noroeste por situarse a montacaballo entre la falda del cerro del castillo y la vega del río Segura.

1.1.5.- CRITERIO DE ORDENACIÓN.
Generales: - Una modulación métrica en malla estricta. - Adaptación a la sección del terreno como tema a desarrollar en el proyecto. - Liberar tanto suelo libre llano cuanto fuera posible desplazando al máximo la edificación hacia el talud. - Cuidar el aspecto que presenta el edificio desde puntos de vista infrecuentes como es la visión desde arriba- a vista de pájaro- y en escorzo desde ángulos elevados. El edificio manifiesta su presencia con rotundidad debido a su tamaño y resulta inevitable desde la subida al castillo y desde el castillo mismo.

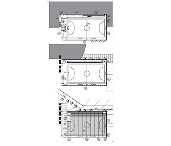
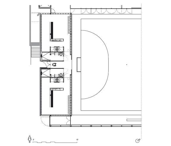
En planta: Se recoge la totalidad del programa dentro de un rectángulo envolvente. Se dispone una banda de separación del terreno excavado destinado a almacenes y cubierto por la rampa y otra destinada a los vestuarios, tribuna y acceso superior dispuesto para la protección del poniente.

En sección: Hacer coincidir la cota de la cercha de cubrición ¿cordón inferior -con la rasante del terreno para poder penetrar dentro de la cubierta y ver el horizonte de la vega del Segura a través de la cubierta, enmarcando la vista del horizonte entre el plano de cubierta y el plano del falso techo.

Todo este trazado queda iluminado por la cristalera norte antes descrita y por el lucernario cenital a plomo sobre ella. De este modo se conecta la cota superior de acceso con la inferior del colegio. Se cumple además con la obligación de establecer un itinerario adaptado.

En planta: Se recoge la totalidad del programa dentro de un rectángulo envolvente. Se dispone una banda de separación del terreno excavado destinado a almacenes y cubierto por la rampa y otra destinada a los vestuarios, tribuna y acceso superior dispuesto para la protección del poniente.

1.1.6. CRITERIO DE FORMALIZACIÓN.
Seis factores son los determinantes: 1.- La escala. Se debe presentar como un objeto único sin indicios de su tamaño real; 2.- La proporción basada en los requisitos funcionales para interiores. 10-5-2. dimensiones: Ancho 5 x 4,44 m; Largo 10 x 4,44 m; Alto 2 x 4,44 m; 3.- La modulación, que es sistemática, patente en los despieces del encofrado de hormigón, los ejes de estructura, etc. El modulo es 1,11 m (despiece de vidrio) y sus múltiplos 2,22 m (altura de cercha, altura de planta en duchas y longitud de encofrado); 4,44 m (distancia entre ejes de pilares); 22,20 m (anchura de pista); 44,40m (longitud de pista). 4.- El material, optándose por un único material: acero en estructura, acero en revestimientos, acero en cubiertas-; 5.- La dimensión: tan ajustada como fuera posible tanto en altura como en planta; 6.- La luz; cenital y difusa evitando; será protegida al sureste, abierta al norte, y focalizada -la cenital -sobre la rampa.