Premio 2007
COMPLEJO DEPORTIVO LA FLOTA . Murcia
descripcion fotos
mMUzzIg26g fnJ618e9vi hmaPpiFNuZ OMdOV6qr00 Vd0ToGwsqp E6l7xK0K1q xaCqxjJXqS fpYcO5VCoX YNrPc8JmrE eAn0jRJaeE RNiRkraLrK y7APTbkRAO zJHyemOD3e
Arquitecto:Jesús R. Ortín Avilés - Francisco Cavas García - Antonio Alcaraz Castejón - José Ramón López Muñoz / Promotor:Ayuntamiento de Murcia / Constructor:Infraestructuras Terrestres, S.A. (INTERSA) / Colaborador:Miguel Acosta, Víctor García, Antonio Torregrosa, Ángel López - José Miguel Ortín, Fernando Dominguez, Manuel Olivares - Fernando Algorta, Iván Gonzálvez, Carlos García - Emilio Cavas, Joaquín López - Alicia Ruiz, José Manuel de la Peña - Rosa Parra, Jesús Sánchez, Javier Vélez, Cristina Galindo
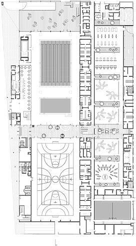
El programa de partida del edificio era bastante complejo debido a la intención de ofrecer una variada oferta deportiva. Se integrarí­an en el conjunto un área de piscinas climatizadas, pabellón polideportivo, ambas con graderí­o, cafeterí­a-restaurante, sala de usos múltiples, gimnasio-spa de grandes dimensiones, pistas pádel incluida una central con graderí­o, locales comerciales, aparcamiento subterráneo y  por ultimo cuartel para la policía local.

De todos ellos, destacan como elementos principales el área de piscinas y el pabellón polideportivo por lo que la relación entre ellos serviría como idea generadora del proyecto. Los demás ingredientes, sencillez, espacio y  luz; nada nuevo.

La diversidad de actividades  que se van a generar en el centro quedará englobada dentro de un gran espacio único, surgiendo así el elemento más expresivo del edificio; su cubierta continua, de geometría curva potenciada por el despiece radial del muro cortina de las fachadas.

El edificio se conforma, en planta por tres franjas paralelas a los viales.

La primera, desarrolla locales comerciales, cafeterí­a-restaurante y sala multiusos, moldeando el acceso principal del edificio, desgarro entre fachada y cubierta para generar un espacio porticado que invite al acceso.
Su expresión al exterior, muro cortina de enfatizado cromatismo, que revela el dinamismo del uso que alberga y sirve de reclamo al transeúnte.

La franja intermedia articula respecto al gran vestí­bulo central acristalado el área de piscina y el pabellón polideportivo. Se constituye como calle interior que permite a la vez que accedemos al centro empaparnos de las actividades que se están desarrollando. Espacio y luz en el interior del edificio.

En la tercera franja se dispone un gran gimnasio-spa. Patios acristalados generan independencia funcional pero unidad espacial a las distintas salas. La cubierta se hace útil, pistas de pádel y extensión de la actividad hacia el exterior.