Mención 2007
MUSEO DE LA MURALLA ÁRABE DE MURCIA . Murcia
descripcion fotos
vb5XHSE65P R1G3d350SW 9psDUGiMYc updMLJxbwr o41x7WwqbY W5OBWfuJMj uOLItxeptR 2y5X2oXDXo 8kMeDdBM7M QpApa2bsqS
Arquitecto:Atxu Amann - Andrés Cánovas - Nicolás Maruri / Constructor:UTE Muralla Árabe de Murcia-Azuche 88, S.L. y Construcciones Villegas, S.L. / Arquitecto técnico:Rafael Checa / Colaborador:Ana Arriero, Beatriz Amann, Ana López - Patricia Lucas, Carlos Ríos, Manuel Villanueva
La restauración de los volúmenes originales de la muralla y el carácter docente del edificio contribuyen a una adecuada lectura y puesta en valor de los restos arqueológicos. El edificio se inserta en la trama urbana completándola, al tiempo que establece un diálogo con el carácter monumental de la iglesia de Santa Eulalia. 

Los restos edificatorios, edificios desmembrados y vapuleados por el paso del tiempo, fueron alguna vez en su momento preciso arquitectura. Una manera de enfrentarnos a la intervención sobre las ruinas, es la toma de conciencia de releer la arquitectura y no tanto de consolidar el derrubio y en ese sentido proporcionar nuevas construcciones que se apoyen sobre el palimpsesto del pasado. La ruina consolidada se nos presenta como una propuesta pasiva y posible que descubre una cierta cobardía. Un esquema de comportamiento que se abalanza apresuradamente, tan sólo con las técnicas, para resolver en su totalidad problemas que deberían concernir al peligroso mundo de las estrategias. 

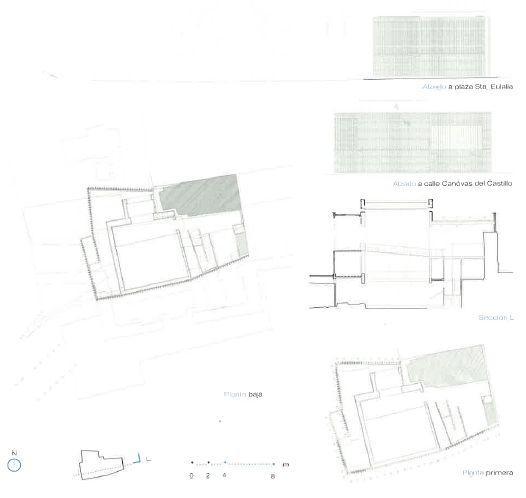
El programa responde al acondicionamiento de las ruinas de la muralla árabe de Murcia de manera que pueda acoger visitantes y mostrar los restos arqueológicos. El proyecto se sitúa sobre una excavación abierta en la Plaza de la Santa Eulalia. En dicha excavación, de unos 110 m2, se conservan restos de la muralla árabe del siglo XII sobre la que durante el siglo XV se construyó una nueva muralla coincidiendo en este punto con el torreón de acceso. 

Para ello se propone una intervención que restaura los volúmenes originales de la muralla y diferencia las cotas históricas que se han superpuesto hasta nuestros días. El nuevo edificio cierra el perí­metro de la plaza mediante una cortina de madera de cedro canadiense, cortina  translucida que protege de la fuerte luz y  sensible a la presencia dominante de la iglesia barroca de Santa Eulalia. Los mínimos espacios interiores del museo, la sala roja y la sala azul, se organizan alrededor del vacío central, que se recorre en varios niveles haciendo posible experimentar las dimensiones y el espacio de los muros que allí estuvieron.