Mención 2007
REFORMA DEL BAR ORIENTE . Murcia
descripcion fotos
kLi7JqIqRS K1VrmmVtrr vSFyOyM82H M4Vdy0hjNy JYqmbXqQIE 6dvTlwgeRV dDZqnvycv7 DuNjAOMBRz
Arquitecto:Juan Antonio Sánchez Morales / Promotor:Alfredo Castelo Méndez / Constructor:Pórtico y Aldaba / Arquitecto técnico:Ángel Limia Rozar
Es de los bares de toda la vida, con su nostálgico recuerdo para nuestra generación de tomar allí un café  con leche antes de acostarte los días de salida, era el primero en abrir, cruzándote con trabajadores de revuelto o carajillo.

Su clientela diaria es fija, abundan los "freakies", nosotros entre ellos.  Dos singulares camareros lo mantienen con fluidez ¿su marca de solvencia la fijan en su capacidad de adelantamiento, hace años que no llego a pedir, lo tuyo por la mañana, lo tuyo por la tarde- y conversaciones que mezclan fútbol con política, un poco de sexo, ciclismo, chistes, esquelas, moda,¿

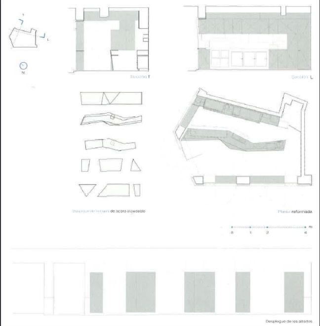
Era un bar muy pequeño y muy lleno. Nuestro objetivo era inmediato: hacerlo más grande. Creemos que lo hemos conseguido, hoy es un poco más grande, cabe más gente, pero sigue igual de lleno en las horas punta.

Pero, ¿cómo hacer un local más grande sin poder contar con más espacio? Fue un trabajo de replanteamiento y ajuste. Primero todo lo que no sirve: fuera, después todo lo que se tiene que quedar: reordenarlo. Decidimos crear un espacio libre interior en el que solo aparecería la barra como objeto, lo demás debí­a alojarse en esa corona intersticial dispuesta entre el espacio libre interior y la lí­nea de cerramiento exterior. Lo medimos todo, desde el molinillo a la máquina de tabaco, y, poco a poco, lo fuimos reubicando. Conseguimos, incluso, que nos sobrara espacio intermedio, disponiendo unas barras complementarias con vistas a la calle para los amantes de leer el periódico con cierta tranquilidad.

El resultado podría considerarse satisfactorio, lo dicen los clientes: parece más grande, pero termina llenándose igual. Conclusión: la densidad, el apiñamiento, para tomar un café es una constante. Ahora cierra a mediodía. La misma caja en menos tiempo, qué envidia.

Otro aspecto: el dueño quería una persiana en cada hueco de fachada. Nada de dejar cristales invitando al vandalismo. Parecía un problema irresoluble. Pero un viaje a Marruecos dio con la solución: hojas abatibles exteriores, una imagen del desierto arábigo como paradigma del Oriente.