Mención 2007
REHABILITACION DEL PALACIO CONSISTORIAL DE CARTAGENA . Cartagena
descripcion fotos
vU3M34kurE 53OXOCi3Ri RVRo8pyLPk rCQtIJFThN o559smwqn9 XfC0ahb9fP lDeHRM3JCU XfC0ahb9fP wb7zpQ1hLy 4fQSeF3pb8
Arquitecto:Juan Antonio Molina Serrrano / Promotor:Ministerio de la Vivienda y Ayuntamiento de Cartagena / Constructor:Terratest, OHL, Dragados, S.A. / Arquitecto técnico:Antonio Luis Mármol Ortuno - Juan Carlos Molina Gaitán / Colaborador:Salvador Mas García - Jesús López López - Marta del Pilar Pérez Herrero
Estamos ante un edificio que, desde su construcción en 1900, ha albergado importantes problemas constructivos, derivados de su propio asentamiento y de la deficiente calidad de algunos materiales o soluciones estructurales, todo ello discretamente oculto tras una suntuosa apariencia, reflejo del momento social, político y económico, dando al escenario cartagenero una bella pieza ecléctica de arquitectura, importante por su presencia y significado, pero con el estigma de evidentes fracturas y desperfectos que delataban hasta nuestros días la permanencia interior de un cáncer progresivo que ha arrastrado casi hasta el colapso a esta valiosa y singular edificación.

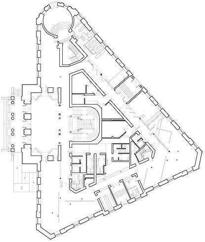
La planta triangular, de claro y rotundo trazado, donde las dependencias se concibieron dispuestas perimetralmente en torno a un núcleo central ocupado por la gran escalera y piezas de servicio, ha permitido una fácil adaptación al programa actualizado correspondiente a un moderno ayuntamiento. En la operación quedaba claro qué aspectos patrimoniales había que salvar y restaurar, dado que las múltiples reformas interiores alteraron los espacios de menos interiores monumental. Así, fachadas, cubiertas, vestíbulos principal y circular (con sus correspondientes escaleras), despacho de alcaldía, Salón de Plenos (incluidas sus excepcionales lámparas) y la concepción global de distribución, con el pasillo perimetral (donde se conservó gran parte de la carpintería original), han sido cuidadosamente devueltos a su esplendor. En el resto se ha actuado acoplando al conjunto las nuevas necesidades, tanto legales como funcionales, siendo consecuentes en su diseño con el compromiso, siempre delicado, de ser fieles a la naturaleza de lo necesario introducido (elevadores, instalaciones, señalización) y la solución formal contemporánea en un contexto arquitectónico predeterminado. En el diálogo resultante queda evidente todo ello, manteniendo un consciente nivel áulico en los elementos introducidos cuando la ocasión lo precisaba.

En resumen, nos encontramos ante una operación de salvamento urgente y adecuación del edificio al uso actualizado para el que fue concebido, con ejercicios de lenguaje que recorren el abanico de los acentos sobre lo antiguo y lo nuevo, priorizando lo pertinente en cada caso, y permitiendo que, aún con su limpio y terso aspecto, sigan luciendo las cicatrices de su pasado, restañadas pero visibles, como testimonio del trabajo siempre sabio del tiempo.