Premio 2003
VIVIENDA EN LA MANGA . La Manga (San Javier)
descripcion fotos
F7UoIFfZ3O dB3uKuM4Rd vGcU1MCCcq kh4TwNq8Y4 CP7suC2JoB nJoRb6xhHU XUjBplx2qU FCJPT32Fyb 3UX9S2oCDS Lgbf64Mblg VqIwjy4KMz
Arquitecto:Vicente Martínez Gadea / Promotor:Antonia María Sastre Andrés / Constructor:Marcaser S.L. / Arquitecto técnico:Pedro Emilio Ballesta
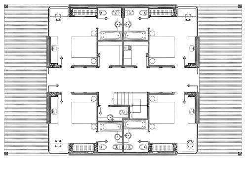
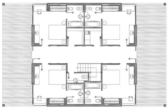
La parcela está en una de las zonas donde La Manga es más estrecha, de forma que goza de la vista y la cercanía de los dos mares y aprovecha muy bien las brisas. Este proyecto cambia totalmente el concepto de dúplex que siempre sitúa en planta baja las zonas de estar, comedor, cocina (o zonas de día) y en el piso superior los dormitorios, ya que esta solución tradicional encajona entre los muros de cerramiento de la parcela las partes más usadas de la vivienda con la consiguiente perdida de visión panorámica y de aprovechamiento de brisas, problema más acentuado en parcelas pequeñas donde el muro al que se enfrentan los huecos de las estancias se encuentra a sólo unos cinco metros. 
Para compensar la falta de terreno contiguo al mismo nivel de las zonas de día, (que es la mayor ventaja que tiene como contrapartida la solución tradicional), se habilitan dos grandes terrazas junto al salón a su misma altura. El paso a las dos terrazas laterales se realiza mediante grandes puertas correderas, lo que asegura junto con los ventanales de fachada la ventilación cruzada tanto Levante-Poniente como Norte-Sur, además de la vista sobre los dos mares. El vestíbulo de entrada atraviesa de lado a lado la vivienda y tiene una puerta de acceso en cada extremo. Sirve como distribuidor de los dormitorios y escalera a la planta superior, eliminando totalmente los pequeños pasillos. Las dos entradas enfrentadas se sitúan en sendos grandes porches que dan sombra y ventilación cruzada.
La cimentación y estructura son de hormigón armado en los dos forjados y pilares y vigas de la planta inferior, pero la superior se resuelve con estructura de acero, para ofrecer a la vista dimensiones más ligeras, con elementos que fueron galvanizados para evitar la corrosión. Finalmente, el forjado de cubierta se resuelve con vigas de 11 metros de madera contracolada, que se dejan vistas como techo del salón, que apoyan un tablero sandwich con aislante incorporado con la parte vista de madera machihembrada. El techo de madera se acompaña con un suelo de parquet de madera de aspecto similar. 
La cocina es de acero inoxidable cepillado y madera de haya para insistir en el uso de pocos tonos pero muy señalados: el color de la madera clara en suelo, techo y muebles, el color blanco en las paredes dentro y fuera y puertas lacadas, y el color del aluminio plata y acero inox en ventanas, cierres de seguridad, manivelas, lámparas y muebles de cocina. 
Toda la composición acentúa las líneas horizontales, con huecos de hasta 18 metros de largo, acompañando a su situación paralela a una larga carretera y entre los dos horizontes de los dos mares.