Mención 2003
8 VIVIENDAS DE PROMOCION PUBLICA EN LA UNION . La Unión
descripcion fotos
lcDrYnhboR CRCoyRFCUB VqtrB5O7Kv WIWm8HINYk PSLXZbI4cf gWq3v2lpDY NrabPk1CY0 tt9VMkEfAc iX3TEx0K3f XcDNf8picB 6LYuXIFv8l
Arquitecto:Javier Peña Galiano - Martín Lejarraga Azcarreta / Promotor:Instituto de la Vivienda y Suelo / Constructor:Construcciones Joaquín Inglés / Arquitecto técnico:J. Andrés Guzmán
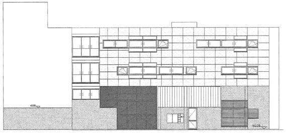
La actuación se sitúa en la Plaza Callao, un pequeño espacio abierto en la densa trama urbana de La Unión, que ha sido recientemente urbanizado para su uso público. 
El solar, entre medianeras, presenta una geometría muy irregular en todos sus bordes, con las fachadas exteriores a la plaza orientadas a mediodía y levante. Los edificios contiguos son naves industriales ocupadas por talleres y almacenes, y el entorno próximo se caracteriza por la presencia de viviendas unifamiliares de planta baja.
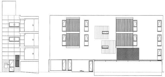
La geometría del solar, su situación en el entorno urbano, y su disposición frente a la Plaza Callao, así como las condiciones urbanísticas particulares del mismo, justifican la resolución del programa Apropuesto (residencial colectivo en tres niveles de viviendas con núcleos de escaleras comunes, dispuestos hasta completar las ocho viviendas requeridas); una configuración muy apropiada a la vocación plenamente urbana de la zona - adaptada a la escala de la plaza y a su presencia en la misma -, que hasta el momento no ha comenzado. Los alzados, tanto exteriores como interiores, se proyectan como planos continuos/tersos, en los que quedan en una misma cara -enrasados- todos los elementos que los integran, revestimientos modulados, carpinterías, celosías, etc. y que incorpora en su presencia a la plaza un espacio pintado, un paisaje animado y cambiante. La propuesta cubre las condiciones de promoción previstas por el promotor para el solar: ocho viviendas, de las cuales dos son de dos dormitorios y las seis restantes de tres. 
El aparcamiento obligatorio se resuelve en el nivel de planta baja, con entrada directa desde la plaza (tráfico mixto restringido), evitando sótanos que, dada la geometría del solar y los bajos costes de construcción, no resultan operativos. 
Los patios interiores, que optimizan los espacios generados por el irregular perímetro del solar, caracterizan las viviendas, que se resuelven con estancias pasantes (con doble orientación) como núcleos que ordenan el conjunto de las mismas. Los espacios se plantean como franjas comprendidas entre dos diafragmas - de luz, vistas, intercambios con el exterior, etc. -, que admiten cambios distributivos rápidos y sencillos. 
El bajo coste de construcción de las viviendas sociales y el requerimiento de las mejores condiciones de mantenimiento, se revelan definitivos en la concepción estructural y constructiva del proyecto, permitiendo conjugar la aportación de soluciones alternativas a las convencionales, trasladando a la vivienda pública la experiencia en otros campos de la edificación