Mención 2003
CENTRO DE CONGRESOS - ANEXO AL AUDITORIO . Murcia
descripcion fotos
6Xpi26QTT0 xTpGw7aWuI vH6UMkJaru ojpo5JdHQG gcXKKGNLLl D4g4jonLp5 BVK90RDZAm bwPbqVyVNd Mmbw5ri9uC cO7NZqVOK7 93cid8pt0N iDhtR4baTZ
Arquitecto:Ignacio García Pedrosa - Ángela García Paredes / Promotor:Murcia Cultural, S.A. / Constructor:UTE, Urdemasa y Villegas / Arquitecto técnico:Isidoro Agulló Quirós
El Centro de Congresos debía completar el programa de usos del Auditorio de Murcia, construido en 1995, cuya rotunda geometría triangular no permitía un adosamiento físico. Sin embargo el clima y el carácter de zona verde del área permitían una conexión virtual entre ambos edificios a través del jardín, espacio para el encuentro, que se crea entre ellos y una relación visual permanente entre ambos. 
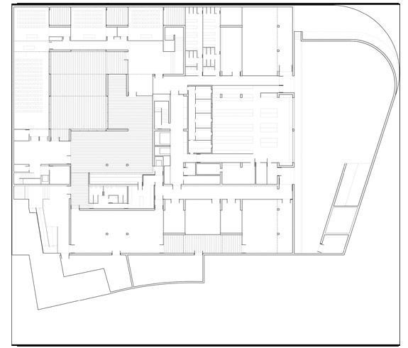
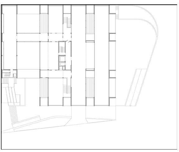
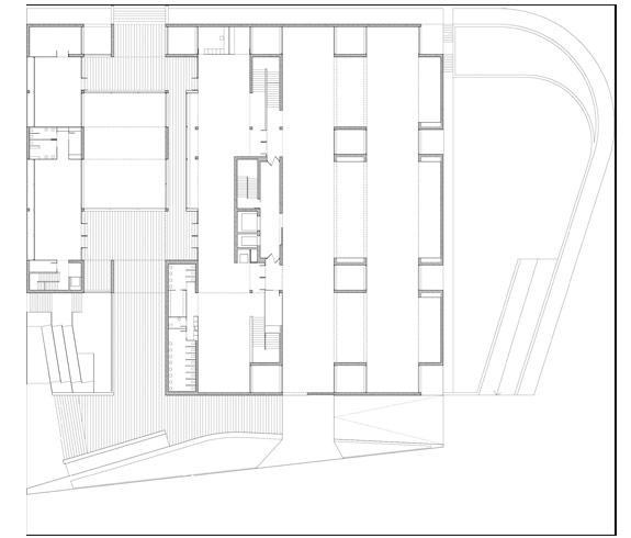
El edificio se organiza en una serie de naves paralelas unidas por patios de luz. Las salas diáfanas de exposiciones, continuas y de diferentes alturas, se relacionan a través de los patios, tejiendo hasta confundirse, espacios abiertos y cerrados. La orientación en su interior se consigue con la visión constante hacia el exterior, hacia el Auditorio y hacia el paisaje. Como en la arquitectura tradicional, los patios se conciben como expresión de calma y concentración, determinando la relación entre las personas. Exterior e interior se confunden a través del reflejo de los cerramientos de vidrio. De esta forma, las salas se suceden en un recinto ensimismado y luminoso, entre patios, en el que su dimensionado permite controlar la entrada directa de sol en una continua transparencia. Las salas, con un uso flexible para grandes exposiciones, congresos, comedores de distintas capacidades, permiten la comunicación entre ellas y con un gran interior único. Los patios se configuran en este espacio multipolar como ampliación de los interiores. 
La autonomía formal del nuevo edificio respecto del edificio principal hace referencia a éste en la piedra dorada que plementa los volúmenes de hormigón visto gris de las naves. En ellos se abren los huecos de escala indefinida de los patios. En el interior la unidad de tratamiento de vestíbulos, salas y galerías, de hormigón continuo en suelos, paneles de okume y techos de metal estirado, define un carácter casi industrial y configura un espacio de voluntaria austeridad.
Como en la arquitectura tradicional, los patios se conciben como expresión de calma y concentración, determinando la relación entre las personas. Exterior e interior se confunden a través del reflejo de los cerramientos de vidrio