Mención 2003
REFORMA VIVIENDA EN EDIFICIO DE LOS NUEVE PISOS . Murcia
descripcion fotos
Ut4OTzfjmA JDzPNJ4S3B htbAJbcYGG tvKZHErY3t HRn1BmrMfV eys8pZGVNe Lpu52n7bQz YrQ6HOvYWm m6VAIZcO5o kwpMEti9a7 tmnoeowwZA osy7dQZtm0
Arquitecto:Javier Peña Galiano / Promotor:Elena Castaño y Javier Peña / Constructor:Construcciones Abellán / Arquitecto técnico:Antonio Motos
Siempre se ha comentado que uno de los encargos más difíciles de realizar para un arquitecto es su propia casa, supongo que por la definición de un personaje, sus pautas de vida, intereses, etc. pero también su posición ante la cultura contemporánea y la Arquitectura que toda vivienda conlleva en sus pautas de representación, de expresión social. Claro que el arquitecto no está solo: una familia en crecimiento, con características propias, unas pautas de convivencia social con otros familiares y amigos... que deben de encontrar cabida en esta negociación amplia, que siempre existe al construir Arquitectura.

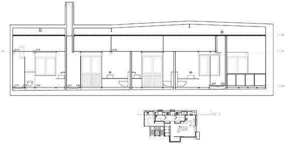
Situación. El edificio donde se ubica la vivienda es conocido en Murcia como la “Casa de los Nueve Pisos”, un edificio acabado en el año 1921 sobre las trazas de un convento del S. XVI. Fue el primer edificio en altura con estructura de acero realizado en la Región, y respira la cultura de los edificios del Chicago de principios del S. XX. Construye una manzana completa con un gran patio central, que era el claustro del convento. Con una volumetría en “L” de seis y nueve plantas. Literalmente se conservaron los arcos de piedra y se levantaron sobre ellos los muros de ladrillo macizo de las fachadas interiores. El volumen exterior también se realizó con muros de carga, absorbiendo alguna de las puertas de acceso al convento. Todos los forjados son metálicos, sobre una estructura primaria de pilares y vigas de acero, roblonadas, con luces variables entre cinco y siete metros. 
Rehabilitación. Al adquirir la vivienda, en la novena planta de la esquina Sureste, el edificio estaba inmerso en una lenta rehabilitación de estructura, una vez acabadas las fases arreglo de fachadas, que debía realizarle sin desalojar el edificio y que cada inquilino que acometía una reforma procedía en base a un proyecto general.
El primer tramo de la obra consistió en reforzar los forjados, suelo y cubierta, creando una capa de compresión armada, una vez saneadas y reforzadas las viguetas metálicas. Conocidas las zonas de acumulación que el nuevo proyecto proponía, también se fundieron áreas de refuerzo. 
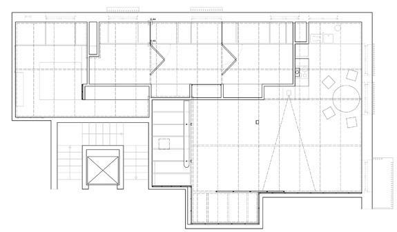
Decisiones básicas. Esta situación de rehabilitación general era una oportunidad para plantear algunas cuestiones acerca de la idoneidad de la cámara de cubierta, la distribución de instalaciones y la relación entre programa de vivienda / luz natural. Todas estas premisas se han resuelto desde la consideración de los procesos constructivos como motores conceptuales, de escala y sensoriales. 
Casa operativa. Este término contempla una gran carga de pragmatismo pero, por otro lado, plantea: ¿qué es una casa operativa?... ¿es exportable, repetible?... 
Para ello habría que fijar las funciones y su relación dimensional, sobre un programa como es el de la vivienda que simultáneamente cambia y, sin embargo, es siempre el mismo. Además la vivienda tiene una superficie de 110 m2 construidos totales, por lo cual la solución adoptada tiene que contar con la densidad como valor. La creación de una casa debe contar la aparición de un espacio central con memoria, que genere un recuerdo, cosa difícil por la fragmentación habitual de los programas domésticos. El disfrute de este espacio tiene que ver con las pautas de vida de la familia, en las que prima la relación entre los individuos como proyecto colectivo. Por otro lado, las formas de vida contemporáneas marcan unos ritmos comunes respecto al trabajo, que genera una simultaneidad en el tiempo que no deben darse en el espacio, para ser operativos. Por ello cada individuo dispone de un kit “asearse, dormir, acumular”.
Forma. Para la realización de estas bandas se ha creado un mecanismo formal bastante elemental:
 - Por un lado, la valoración del perímetro como elemento, un cascarón blanco. Matizado por el contacto con las zonas húmedas, donde el yeso pasa a ser monocapa. Los huecos se configuran sobre esta variación del blanco: carpinterías exteriores (impuestas por la protección del edificio), capialzados y cortinas enrollables interiores.
- En medio de este recinto aparece una construcción quebrada, con variaciones sobre el plata, cuya base es una tabiquería de ladrillo, enlucida y pintada en martelé plata. Los diferentes quiebros producen un arrastramiento auto-estructural, necesario dada la altura y al no atracar los tabiques contra el forjado de cubierta con el fin de pasar el panel aislante sobre todos los elementos interiores. La estructura – estantería del acceso aparece vinculada a esta pieza central, pintada también con gris plata. 
- La banda húmeda se cierra con un diedro de vidrio sobre una estructura de acero inoxidable. Aquí se busca una disolución de la forma, usando el reflejo con diferentes variantes (espejos, inoxidable brillo, vidrio), la luz natural y artificial (iluminación superior y trasera). Toda la banda se unifica con una fotografía, recuerdo de las vistas de la casa donde vivíamos antes en el monte: el recorte del jardín contra el bosque. 
Procesos ambiguos. Gran parte de los diseños propuestos (espaciales, constructivos o tecnológicos) se les ha dotado conscientemente de un alto grado de ambigüedad, al no tener una única definición, uso, ni nombre. 
Confort y energía. Los criterios adoptados para conseguir los niveles de habitabilidad necesarios, responden a una definición de calidad de diferentes parámetros sensoriales (luminosos, acústicos, higrométricos, térmicos, etc.). La solución a cada uno de ellos puede ser múltiple o específica; pasiva o mecánica; con aporte energético natural o artificial. Así se escalonan los niveles de confort y las repuestas para cada caso. Es fundamental la presencia de un sistema domótico que articula de manera activa todos los sistemas pasivos y activos de la vivienda, ya que al no haber una presencia continuada a lo largo del día, es la única forma de mantener buenos niveles de estabilidad térmica. 
Tiempo. El desarrollo de una obra propia, siempre más lento de lo que deseamos los arquitectos, permite generar una comprobación de los elementos proyectados, pero también una reflexión sobre la verosimilitud de las ideas conceptuales con las que hemos trabajado en otros proyectos y concursos… en carne propia… y sin anestesia! Quizás la comprobación no pueda ser tan inmediata, ya que cuando vives y disfrutas de la nueva vivienda comienzas a ajustarte a ella y viceversa, como unos zapatos nuevos.