Mención Espacio Público y Arquitectura del Paisaje 2017
RECUPERACION DEL PATRIMONIO ETNOLOGICO Y CULTURAL DE LA CALLE DEL AGUA . Pliego
descripcion fotosSostenibildiad
2de12 1de12 6de12 3de12 4de12 5de12 7de12 8de12 9de12 10de12 11de12 12de12
Arquitecto/Autor:Fernando de Retes Aparicio - Francisco José Abellán Estevan / Promotor:Ayuntamiento de Pliego / Constructor:REHABILITACIONES Y CONSTRUCCIONES GALÁN E HIJOS, S.L. / Arquitecto técnico:Salvadora Cecilia Leyva Párraga
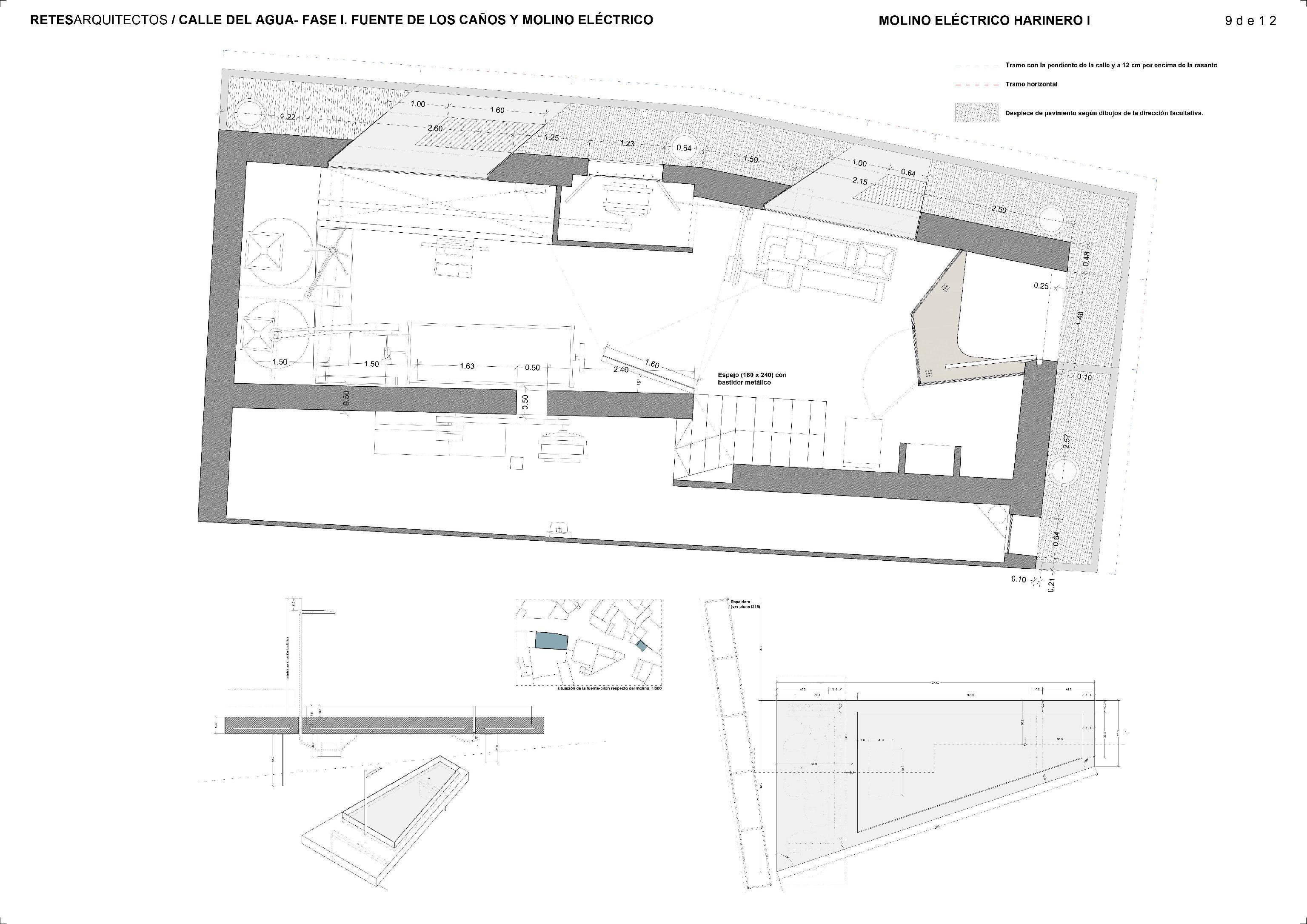
Calle del agua. Fase 1. Fuente de los caños y molino eléctrico.
Proyecto de recuperación del patrimonio cultural y etnográfico. Declarado bien de interés cultural, con categoría de lugar de interés etnográfico. Murcia, 8 de febrero de 2011. ¿

"En la segunda mitad del siglo XV las Visitas santiaguistas constatan que el sistema hidráulico de Pliego comprendía el nacimiento de Los Caños (la fuente del lugar), situado al pie del cerro del castillo, la acequia principal, que cruzaba el casco urbano pasando, primero, por el interior de la fortaleza y a continuación por un molino harinero sito junto a la barrera de aquélla, y las tierras irrigadas de los alrededores. Tiempo después es mencionada la existencia de una balsa alejada de la población, donde se recogía el agua de la acequia madre, que los textos santiaguistas bajomedievales no mencionan". Francisco Chacón Jiménez. De la memoria del proyecto cultural.

El proyecto plantea las relaciones entre agua, energía y tiempo como factores que se van interrelacionando a lo largo del recorrido de la calle y que han condicionado el uso social del espacio.
De algún modo, un espacio urbano es un lugar social asociado al tiempo y a la energía. En este caso el movimiento del agua activa mecanismos y resortes (molinos, almazaras, batanes) y el propio recurso hídrico es controlado socialmente por unidades de tiempo y artefactos: tandas de riego, relojes, etc.
El proyecto va proponiendo otros artefactos que evidencian esta relación: clepsidras, reloj de sol, microgeneradores hidráulicos y solares, pilonas etc.  sugiriendo elementos evocadores del agua:  difusores. humectadores cerámicos, esculturas dinámicas de agua. La ausencia de agua se sustituye por sus efectos a través de estas relaciones utilizando el verde y el sonido como sus manifestaciones. Al mismo tiempo propone la regeneración del propio espacio y su uso ciudadano mejorando las condiciones de confort con las transformaciones del microclima de la calle, la escenografía del agua y la puesta en valor de los valores etnográficos e históricos. Se estudia el caudal de agua de escorrentía a recoger en La Balsa (próxima fase 2) en toda el área de intervención (calle y cubiertas).

Se propone una escenografía museística en la que la calle es el recorrido y los edificios las vitrinas al pasado.
Así en la fase 1 ejecutada, la recuperación del molino harinero eléctrico se contempla desde el exterior, evitando que la admisión de personas obligue a transformar totalmente el contenido. Esta primera vitrina se ha centrado en la visión entrópica del paso del tiempo, conservando el interior exactamente igual que cuando cerró su actividad. En el video que se proyecta y en los QR se profundiza en su conocimiento.
La plaza de los Caños se transforma para presentar los restos aflorados y para crear un espacio de confort para sus vecinos. Bancos para sentarse y rincones a la sombra del almez transforman un sitio de paso en un estar. 
Hemos utilizado piedra caliza ámbar de desecho de cantera de la zona en pavimentos y grandes piezas de hormigón para escaleras, jardineras y mobiliario. Una maqueta en fundición de aluminio (prototipo realizado en el estudio) los códigos QR y un video ayudan a musealizar el espacio.

Arquitectos: Fernando de Retes Aparicio & Francisco José Abellán Estevan.
Promotor: Ayuntamiento de Pliego.
Arqueólogo: José Antonio Sánchez Pravia.
Aparejadora: Salvadora Cecilia Leyva Párraga.
Vídeo: Frodo García Conde, director de fotografía.
Maqueta prototipo: Retesarquitectos Model (Fran Abellán Estevan).
Maqueta fundición: Amando fundición de arte.