Mención Arquitectura Interior 2017
ATICO CALIDOSCOPICO . Murcia
descripcion fotos
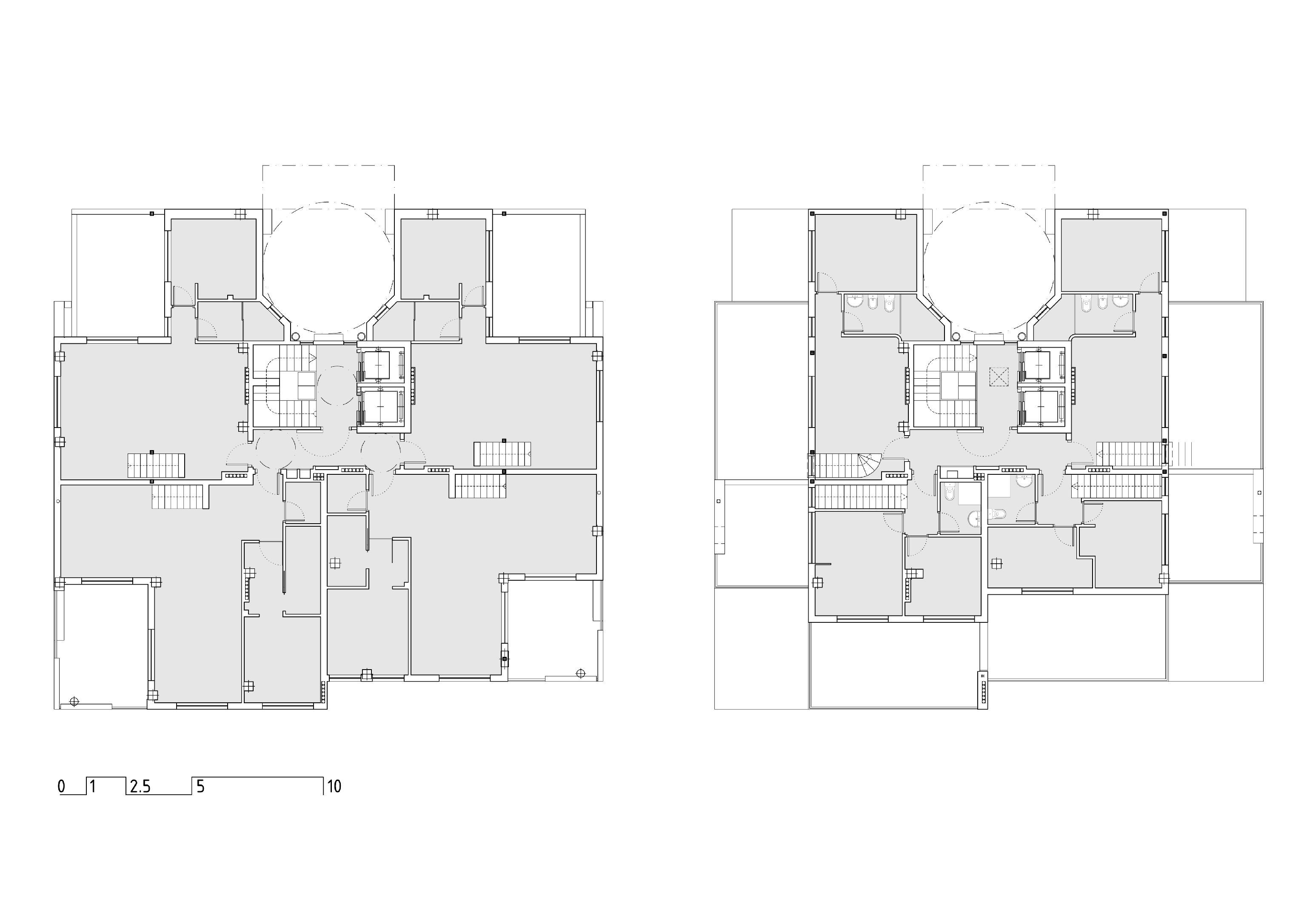
01 02 03 04 05 06 07 08 09 10 11_Estado anterior 12_Estado reformado
Arquitecto/Autor:Luis Clavel Sainz - Manuel Clavel Rojo / Promotor:Ángel Conesa Albadalejo / Constructor:DARMA VIVIENDA, S.A. / Arquitecto técnico:David Hernández Conesa
Ático Calidoscópico.

Autores: Manuel Clavel Rojo y Luis Clavel Sainz (Clavel Arquitectos)
Arquitectos colaboradores: Diego Victoria García y Rafael de Giles González
Arquitecto técnico: David Hernández Conesa
Ubicación: Murcia, España
Finalización: Febrero 2015
Fotografías: David Frutos Ruiz

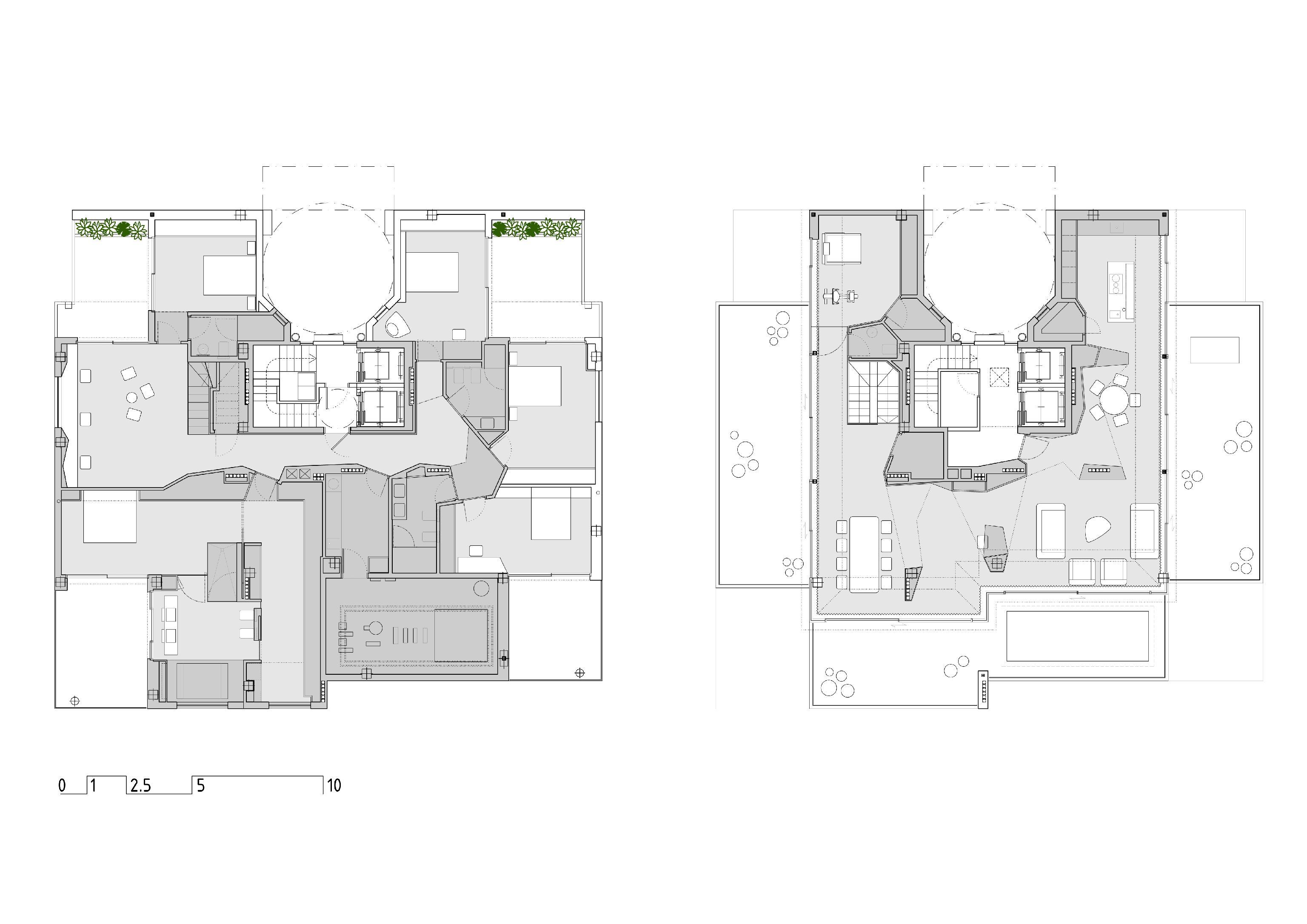
El proyecto consiste en la reforma y diseño interior de un ático, ocupando las dos últimas plantas de un edificio residencial que, originalmente, contenían un total de cuatro viviendas dúplex.

Debido a la composición de la planta general del edificio (planta cuadrada con núcleo central, así como a la existencia de un gran número de bajantes y conductos de ventilación, los espacios de partida resultaban a priori reducidos para el programa de proyecto, que correspondía a una familia numerosa. 

Desde el comienzo se optó por dividir horizontalmente el programa en día y noche, dejando la planta inferior para los dormitorios, y la superior para cocina, comedor, salón, zona de estar y gimnasio.

Este último espacio resultaba privilegiado por estar rodeado íntegramente de terrazas y disfrutar de amplias vistas panorámicas sobre la ciudad y un parque cercano, por lo que se propuso mantenerlo diáfano y organizar el programa de día aprovechando la propia geometría en U de la planta. A continuación, se introdujo un revestimiento de geometría quebrada, el cual ofrece libertad para ir absorbiendo el contorno irregular interior, albergar armarios y elementos auxiliares del programa y hasta integrar pilares y shunts exentos en prolongaciones a modo de tentáculos, que ayudan a separar los distintos usos. 

La decisión de terminar este elemento en vidrio lacado en color gris oscuro convirtió esta planta en un espacio caleidoscópico, gracias a la multitud de reflejos, tanto de la propia vivienda como de las vistas exteriores, presentes gracias al total acristalamiento de las fachadas.

Las terrazas se incorporaron como un espacio más de la vivienda, ayudadas fundamentalmente por la dimensión de los huecos, el empotramiento de los marcos de las carpinterías y la continuidad del pavimento interior de piedra caliza. De hecho, se caracterizaron programáticamente en función de su orientación: terraza-comedor orientada a levante (a la cual se le dota de una cocina exterior), terraza-lounge orientada a poniente, y terraza-piscina orientada a mediodía.

En la planta inferior, con un programa y distribución más tradicional, se recurrió también al recurso de los paramentos quebrados de vidrio lacado, en este caso para romper con la sensación de pasillo que producían los espacios de circulación.

Por último, el dormitorio principal integra espacialmente vestidor y un amplio espacio de baño, organizados en torno a una caja de vidrio que contiene la ducha. Por contraposición, la bañera aparece como una sólida caja horadada en piedra caliza.