Premio Nueva Edificación y Sostenibilidad 2021
VIVIENDA UNIFAMILIAR. ENTRE UMBRALES. . AGRIDULCE (MURCIA)
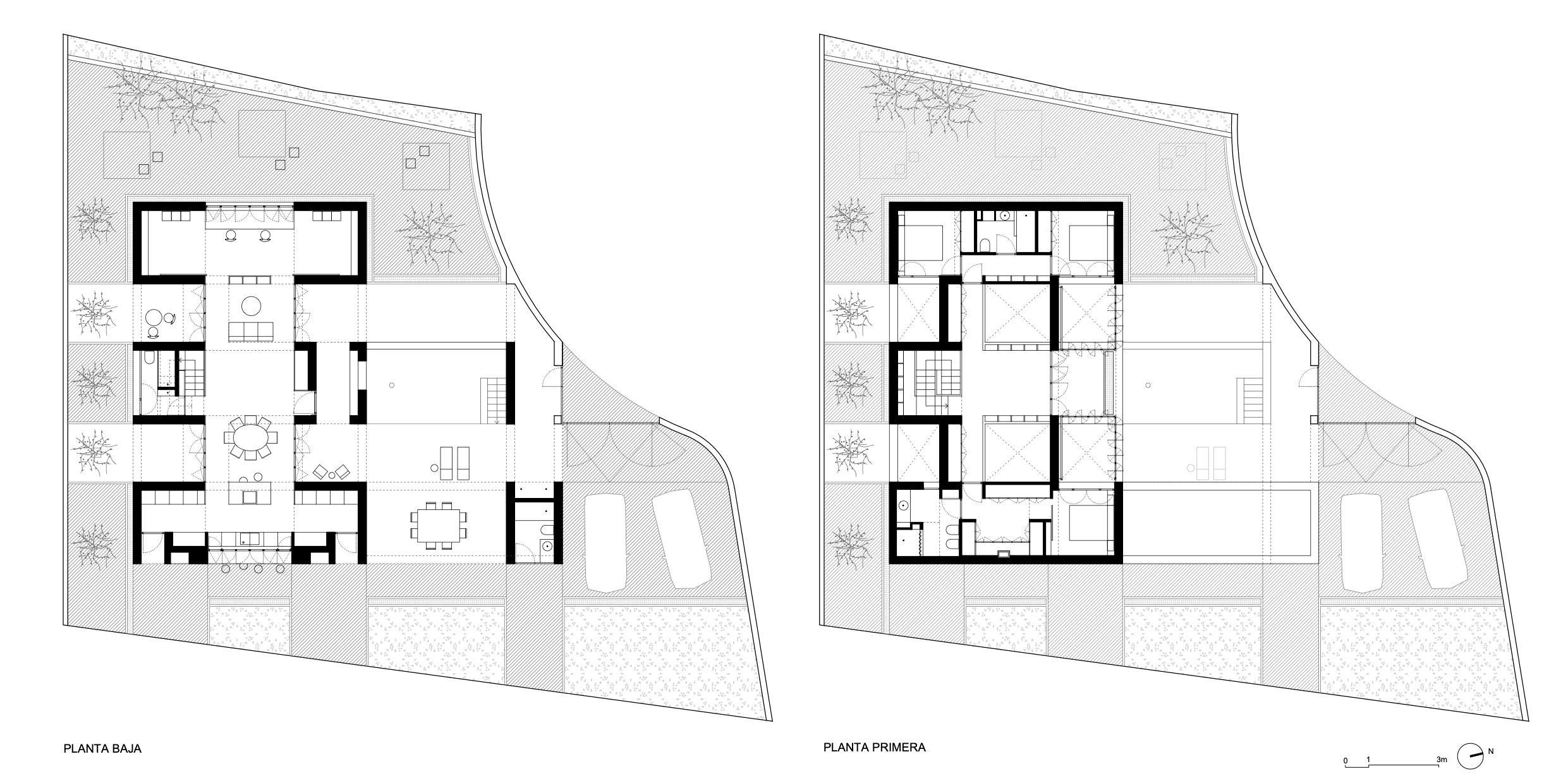
descripcion fotos
Portada 1 Imagen exterior 5 Central interior Plantas Alzados y Secciones 2 Imagen exterior lateral Axonometría 3 Espacios intermedios Sostenibilidad 4 Espacio pasante 6 Detalles planta baja 7 Detalles planta alta 8 Imagen exterior trasera
Arquitecto:Juan Pedro Sanz Alarcón - Juan Antonio Pérez Mateos
Entre umbrales
Vivienda unifamiliar en Agridulce (Espinardo, Murcia)

Arquitectos: Juan Pedro Sanz Alarcón, Juan Antonio Pérez Mateos
Arquitecto Técnico: Manuel Paredes Campillo
Constructora: Avanza Construmur SL
Promotores: Alberto Hernández Jiménez, Ana Tomás Gil

La casa se proyecta como arquitectura que implementa un modo de vida. Los clientes, buscan vivir con flexibilidad funcional y en diálogo con el medio natural. Su retina contiene miradas a lo popular y a la tradición vernácula de las casas mediterráneas. La respuesta arquitectónica se postula bajo una relectura contemporánea de todo aquello que vive en la memoria colectiva sobre nuestro hábitat: sombra, aire, tierra, textura, agua¿

La arquitectura ordena el interior y el exterior. Se construye un amplio catálogo de espacios que diluyen los límites de la vivienda. La casa es introvertida, intima y privada; a la vez que infinita. Los espacios interiores se proyectan hacia el exterior en continuidad.

Se vive dentro y fuera simultáneamente. Los cerramientos se pliegan, se cierran y se abren. Los pavimentos exteriores, en forma de adoquín, colonizan el interior. Hay comedores de día y de noche, de primavera y verano; zonas de estar para el amanecer y para el atardecer.

Se trabaja con la capacidad plástica de la materia constructiva a través de una delicada materialización. Se utilizan revestimientos continuos irregulares ordenados bajo la lógica abstracta de los volúmenes de la casa. La piedra natural local del suelo se convierte también en paramento vertical, envolviendo la atmósfera doméstica de las zonas comunitarias de la vivienda en la planta baja. Las zonas privadas de la planta superior quedan resguardadas por suelos, paredes y carpinterías de madera de pino.

La casa es sostenible con sentido común. Al margen de mecanismos sofisticados a través de maquinaria que resuelva un acondicionamiento sensato, en el proyecto se apuesta por la lógica de los sistemas pasivos. Aquellos que tienen que ver con el diseño de los espacios, su orientación, su protección, su ventilación.

La casa está envuelta en un aislamiento continuo evitando por completo los puentes térmicos. Se utiliza aerotermia en climatización y energía solar para el agua caliente sanitaria. Se crean unos parasoles para evitar la radiación directa sobre los huecos de las estancias. La vivienda tiene ventilación cruzada a través de cada estancia. Cada espacio, habitaciones incluidas, tiene huecos enfrentados para permitir la circulación del aire. La incorporación de la naturaleza en los espacios exteriores, la disposición de los mínimos espacios pavimentados fomentando la filtración de aguas en el terreno natural y la integración de la piscina; permiten optimizar al máximo las posibilidades de mejora de acondicionamiento climático en una vivienda unifamiliar.